EasyManua.ls Logo

Electrolux EFP 60202 - Control Panel; Correct Ventilation

Electrolux EFP 60202
16 pages
Print Icon
To Next Page IconTo Next Page
To Next Page IconTo Next Page
To Previous Page IconTo Previous Page
To Previous Page IconTo Previous Page
Loading...
6
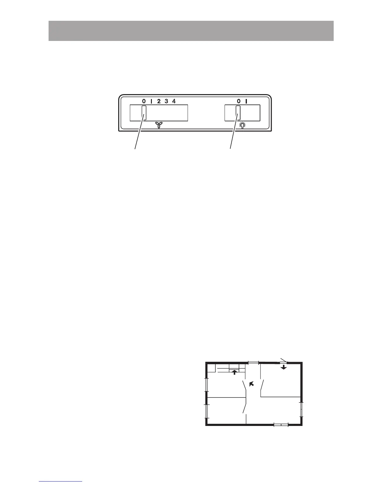
Fig. 2
Control Panel
The best results are obtained using low speed with normal cooking and a higher speed in the case of a
particular concentration of fumes.
The switches are mounted on the upper right side of the visor (Fig. 1 - E - Fig. 2).
The fan is controlled by moving the motor switch.
The extractor part (visor) of the hood is used to
switch the fan on and off when the appliance is
switched on (Motor).
When the visor of the appliance is withdrawn, the
fan automatically switches on.
If the visor is pushed in without operating the
switches, the fan is switched off.
The lighting can be separately switched on and off
with the light switch.
Turn the hood on a few minutes before you start
cooking then you will get an underpressure in the
kitchen. It should be left on after cooking for about
15 minutes or until all odours have disappeared.
Correct ventilation
If the cooker hood is to work correctly there must
be an under pressure in the kitchen. It is important
to keep the kitchen windows closed and have a
window in an adjacent room open.
Light switchMotor switch

Related product manuals