EasyManua.ls Logo

Electrolux EJF4340AOW - Τα Μερη Τησ Συσκευησ Και Οι Θαλαμοι

Electrolux EJF4340AOW
88 pages
Print Icon
To Next Page IconTo Next Page
To Next Page IconTo Next Page
To Previous Page IconTo Previous Page
To Previous Page IconTo Previous Page
Loading...
ΕΛΛΑΣ 35
ΜΕΡΟΣ -7 ΤΑ ΜΕΡΗ ΤΗΣ ΣΥΣΚΕΥΗΣ ΚΑΙ ΟΙ ΘΑΛΑΜΟΙ
15
1
2
3
4
5
6
7
8
9
10
11
12
13
14
17
16
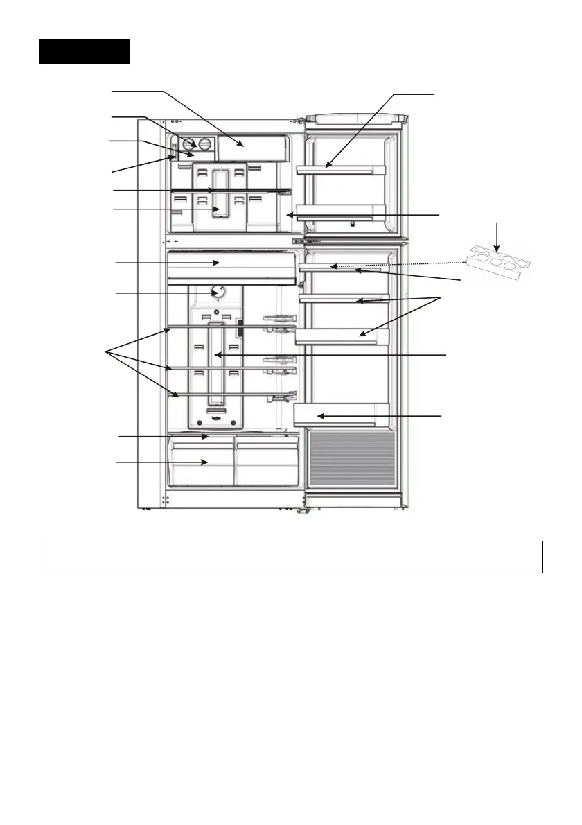
Η παρουσίαση αυτή προορίζεται μόνο για πληροφόρηση σχετικά με τα μέρη της συσκευής.
Τα μέρη μπορεί να διαφέρουν ανάλογα με το μοντέλο της συσκευής.
1) ΡΑΦΙ ΤΑΧΕΙΑΣ ΚΑΤΑΨΥΞΗΣ
2) ΔΙΣΚΟΣ ΣΧΗΜΑΤΙΣΜΟΥ ΠΑΓΟΚΥΒΩΝ
3) ΔΟΧΕΙΟ ΣΥΛΛΟΓΗΣ ΠΑΓΟΚΥΒΩΝ
4) ΟΕΡΜΟΣΤΑΤΗΣ ΚΑΤΑΨΥΞΗΣ
5) ΡΑΦΙ ΚΑΤΑΨΥΞΗΣ
6) ΘΑΛΑΜΟΣ ΚΑΤΑΨΥΞΗΣ
7) ΠΛΑΦΟΝΙΕΡΑ ΛΑΜΠΤΗΡΑ ΦΩΤΙΣΜΟΥ ΣΥΝΤΗΡΗΣΗΣ
8) ΡΑΦΙΑ ΗΠΙΑΣ ΚΑΤΑΨΥΞΗΣ
9) ΟΕΡΜΟΣΤΑΤΗΣ ΣΥΝΤΗΡΗΣΗΣ
10) ΠΛΑΦΟΝΙΕΡΑ ΛΑΜΠΤΉΡΑ ΦΩΤΙΣΜΟΥ ΣΥΝΤΗΡΗΣΗΣ
11) ΡΑΦΙΑ ΣΥΝΤΗΡΗΣΗΣ
12) ΚΑΛΥΜΜΑ ΦΡΟΥΤΟΛΕΚΑΝΩΝ
13) ΦΡΟΥΤΟΛΕΚΑΝΕΣ
14) ΘΗΚΗ ΠΟΡΤΑΣ ΚΑΤΑΨΥΞΗΣ
15) ΑΥΓΟΘΗΚΗ
16) ΑΝΩ ΘΗΚΗ ΣΥΝΤΗΡΗΣΗΣ
17) ΑΝΩ ΘΗΚΗ ΣΥΝΤΗΡΗΣΗΣ
18) ΜΕΣΑΙΑ ΘΗΚΗ ΜΠΟΥΚΑΛΙΩΝ ΣΥΝΤΗΡΗΣΗΣ

Table of Contents

Related product manuals