EasyManua.ls Logo

Electrolux EJF4340AOW - Partes del Aparato y Compartimentos

Electrolux EJF4340AOW
88 pages
Print Icon
To Next Page IconTo Next Page
To Next Page IconTo Next Page
To Previous Page IconTo Previous Page
To Previous Page IconTo Previous Page
Loading...
52 www.electrolux.com
PARTE- 7.
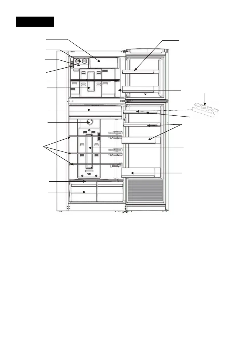
PARTES DEL APARATO Y COMPARTIMENTOS
Esta presentación sólo tiene carácter informativo acerca de los componentes del aparato.
Los componentes pueden variar en función del modelo del aparato.
1) Estante de congelacion rapida
2) Bandeja del hielo
3) Caja de hielo
4) Caja del termostato del congelador
5) Estante del congelador
6) Compartimento congelador
7) Caja/cubierta de la luz del congelador
8) Estantes de refrigeracion rapida
9) Caja del termostato del frigorifico
10) Caja/cubierta de la luz del frigorifico
11) Estantes del frigorifico
12) Cubierta del compartimento de verdura/fruta
13) Compartimento de verdura/fruta
14) Estante del congelador
15) Recipiente para huevos
16) Estante superior
17) Estantes de la puerta
18) Estante de botellas
15
1
2
3
4
5
6
7
8
9
10
11
12
13
14
17
16

Table of Contents

Related product manuals