EasyManua.ls Logo

Electrolux EJF4340AOW - Descrição Geral Do Aparelho

Electrolux EJF4340AOW
88 pages
Print Icon
To Next Page IconTo Next Page
To Next Page IconTo Next Page
To Previous Page IconTo Previous Page
To Previous Page IconTo Previous Page
Loading...
PORTUGUÊS 69
PARTE- 7.
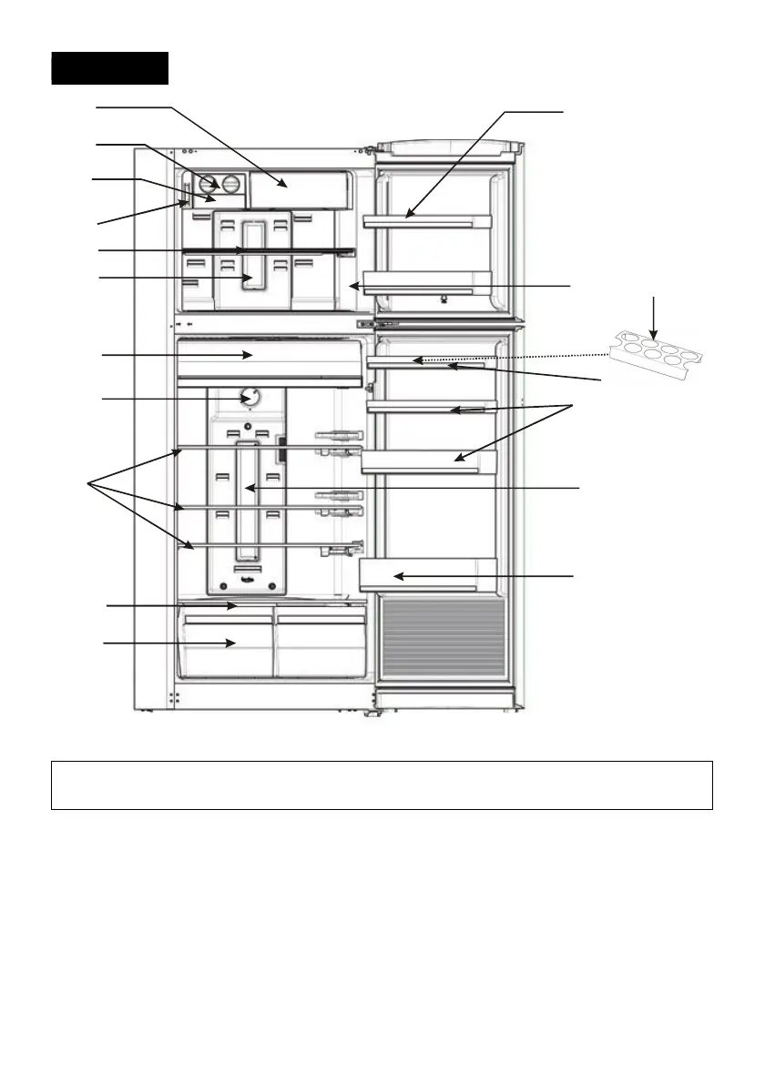
DESCRIÇÃO GERAL DO APARELHO
Esta apresentão é apenas para informação sobre as partes do electrodoméstico.
As partes podem variar conforme o modelo.
15
1
2
3
4
5
6
7
8
9
10
11
12
13
14
17
18
16
1) Prateleira de congelamento rápido
2) Tabuleiro do gelo
3) Caixa de gelo
4) Caixa do termostato do congelador
5) Prateleira do congelador
6) Compartimento do congelador
7) Caixa / tampa da lâmpada do congelador
8) Prateleiras de refrigeração
9) Caixa do termostato do frigorífico
10) Caixa / tampa da lâmpada do frigorífico
11) Prateleiras do frigorífico
12) Tampa dos vegetais
13) Vegetais
14) Prateleira da porta do congelador
15) Suporte para ovos
16) Prateleira para manteiga - queijo
17) Prateleiras da porta
18) Prateleira para garrafas

Table of Contents

Related product manuals