EasyManua.ls Logo

Electrolux HHT8 - Page 7

Electrolux HHT8
40 pages
Print Icon
To Next Page IconTo Next Page
To Next Page IconTo Next Page
To Previous Page IconTo Previous Page
To Previous Page IconTo Previous Page
Loading...
7
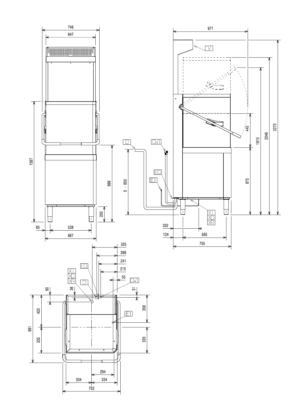
Installation diagram Manual hood type (double skin) with drain pump
and with Energy Saving Device (ESD)

Table of Contents

Other manuals for Electrolux HHT8

Related product manuals