EasyManua.ls Logo

Elkron FL100 - Page 19

Elkron FL100
Print Icon
To Next Page IconTo Next Page
To Next Page IconTo Next Page
To Previous Page IconTo Previous Page
To Previous Page IconTo Previous Page
Loading...
Installazione-Uso / Installation-User manual FL-FLR100 19
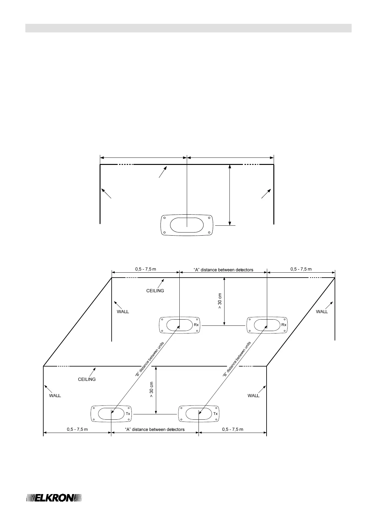
PLACEMENT
Locate the spot where the Tx and Rx units (or the Tx/Rx unit and the passive reflector) must be placed, by
verifying that:
the walls must not be subject to movements, vibrations and deformations due to temperature
variations (e.g. metallic supports)
there must not be any light reflection (even temporary) due to glossy surfaces, mirrors or glasses
located near the devices
the optical path must be free from obstacles in a range of at least 50 cm
the distance between the devices and the ceiling must be greater than 30 cm
in case of sloping ceiling, the receiver unit must be placed near the top of the ceiling
if there is more than one receiver in the same room, they must be placed at a maximum distance of
15 meters from each other
the device positioning must be compliant with the national installation standards
the devices must be horizontally mounted with the display correctly readable
Figure 1- Single optical beam installation
Figure 2- Multiple optical beams installation
CEILING
> 30 cm
WALL WALL
0,5 - 7,5 m 0,5 - 7,5 m