EasyManua.ls Logo

Emerson SP3202 - Unidrive SPMD Power Connections

Emerson SP3202
220 pages
Print Icon
To Next Page IconTo Next Page
To Next Page IconTo Next Page
To Previous Page IconTo Previous Page
To Previous Page IconTo Previous Page
Loading...
Safety
Information
Introduction
Product
information
System
design
Mechanical
installation
Electrical
installation
Getting
started
Optimisation Parameters
Tec h nic a l
data
Component
sizing
Diagnostics
Unidrive SP Regen Installation Guide 71
Issue Number: 2 www.controltechniques.com
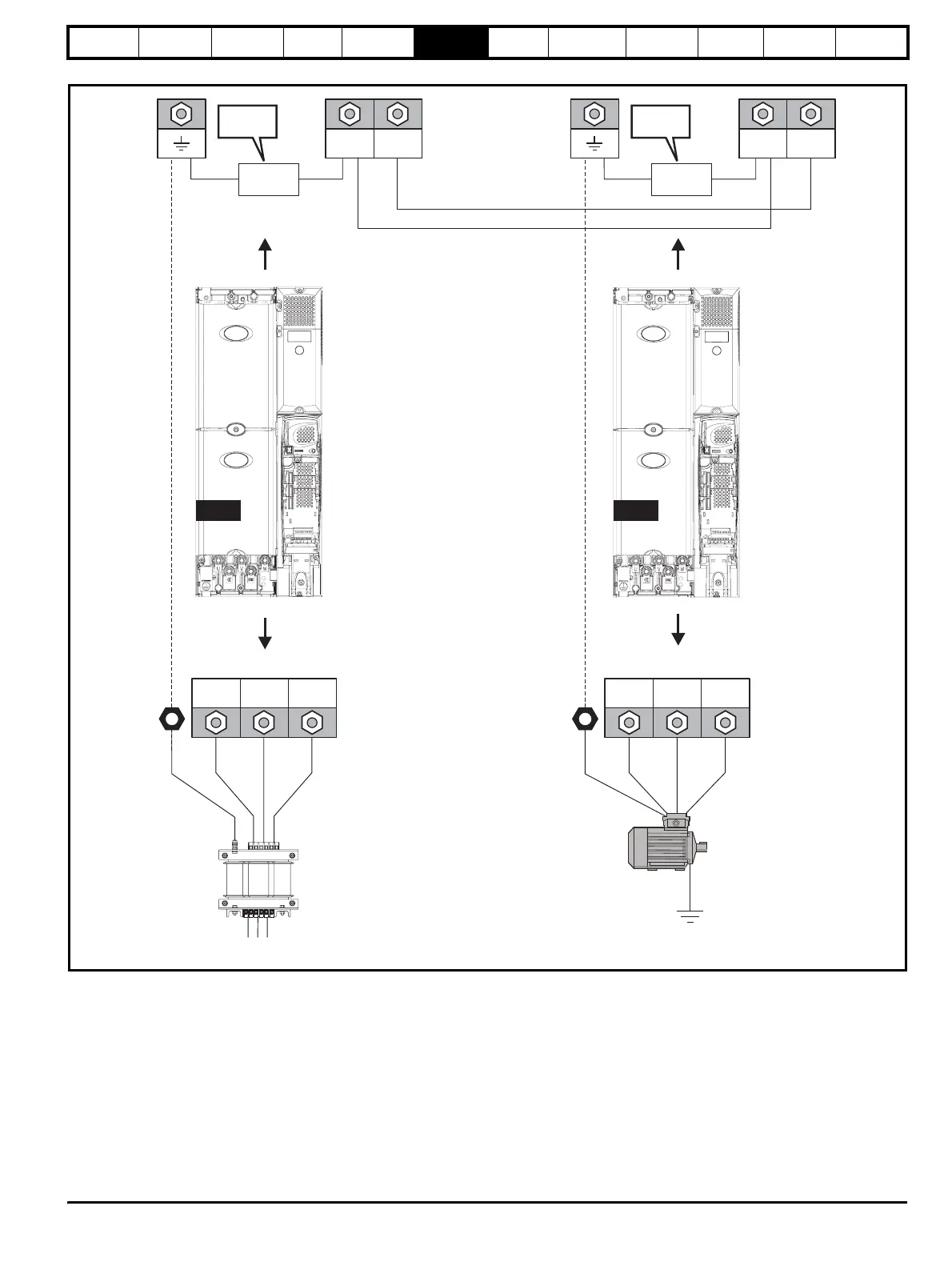
Figure 6-6 Unidrive SPMD power connections
UVW
AC supply connections
+DC -DC
Internal
EMC filter
*
To be
removed
PE
*
DC Connections
(High current DC
to motoring drive[s])
UVW
+DC -DC
Internal
EMC filter
*
4
PE
*
56
To be
removed
Motor
Optional ground
connection
Regen drive
Motoring drive
Vac supply
SPMA
Motor connections
SPMD
SPMD

Table of Contents

Related product manuals