EasyManua.ls Logo

Emerson Tartarini M Series - Page 13

Emerson Tartarini M Series
16 pages
To Next Page IconTo Next Page
To Next Page IconTo Next Page
To Previous Page IconTo Previous Page
To Previous Page IconTo Previous Page
Loading...
Type M
13
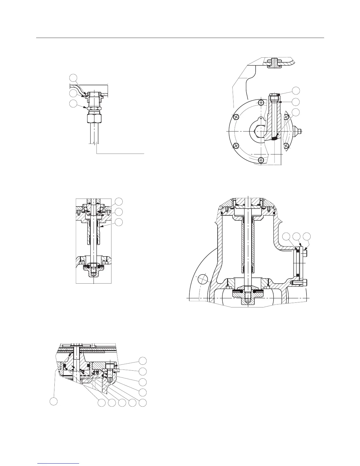
Figure 7. M Series Regulator Assembly (continued)
LM/1392
121122123
120
14
44
15
8
5
7
108
68
109
DN 25 TO DN 100
AP, APA AND PST VERSION
MN • MBN DN 80 TO DN 100
MBN-M DETAIL
49
50
110
EXTERNAL IMPULSE LINE
DETAIL
113
MN • MF DN 25
DETAIL
119118 107
MN • MF DN 40 TO DN 100
DETAIL
7
44
To downstream stainless
steel pipe Ø 15 mm

Related product manuals