EasyManua.ls Logo

Emerson Unidrive HS71 - Page 27

Emerson Unidrive HS71
120 pages
To Next Page IconTo Next Page
To Next Page IconTo Next Page
To Previous Page IconTo Previous Page
To Previous Page IconTo Previous Page
Loading...
Unidrive M / HS Frame 7 to 10 Power Installation Guide 27
Issue Number: 5
Safety information Product information
Mechanical installation
Electrical installation Technical data UL listing information
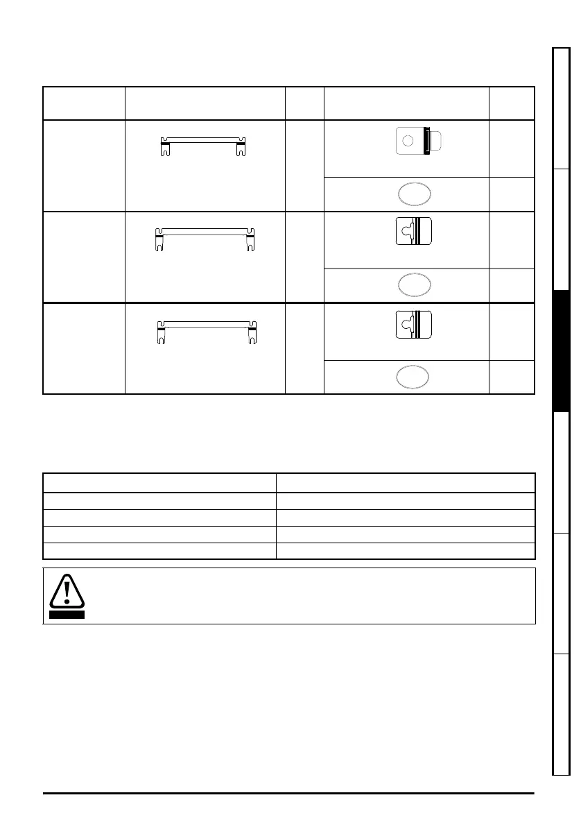
3.4.4 Mounting brackets
Table 3-2 Mounting brackets
* Surface mounting bracket are also used when through-panel mounting.
The through panel mounting kit is not supplied with the drive and can be purchased separately, below
are the relevant part numbers:
Frame size
Surface mounting kit
(supplied with drive)
Qty
Optional through-panel
mounting kit
Qty
7
Hole size: 9 mm (0.35 in)
x 2*
x 2
Hole size: 9 mm (0.35 in)
x 1
8
Hole size: 9 mm (0.35 in)
x 2*
x 6
Hole size: 5.5 mm (0.22 in)
x 1
9A / 9E and
10E
Hole size: 9 mm (0.35 in)
x 2*
x 8
Hole size: 5.5 mm (0.22 in)
x 1
Size CT part number
7 3470-0079
8 3470-0083
9A 3470-0119
9E/10E 3470-0105
If the drive has been used at high load levels for a period of time, the heatsink can reach
temperatures in excess of 70 °C (158 °F). Human contact with the heatsink should be
prevented.
WARNING
Unidrive M frame7 to 10 Power Installation Guide issue5.book Page 27 Tuesday, May 24, 2016 11:52 AM

Table of Contents

Other manuals for Emerson Unidrive HS71

Related product manuals