EasyManua.ls Logo

Emerson Unidrive M700 - Page 76

Emerson Unidrive M700
120 pages
To Next Page IconTo Next Page
To Next Page IconTo Next Page
To Previous Page IconTo Previous Page
To Previous Page IconTo Previous Page
Loading...
76 Unidrive M / HS Frame 7 to 10 Power Installation Guide
Issue Number: 5
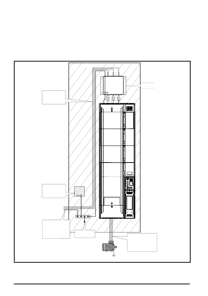
4.11.4 General requirements for EMC
Ground (earth) connections
The grounding arrangements should be in accordance with Figure 4-15, which shows a single drive
on a back-plate with or without an additional enclosure.
Figure 4-15 shows how to manage EMC when using an unshielded motor cable. However a shielded
cable is preferable, in which case it should be installed as shown in section 4.11.6 Compliance with
generic emission standards on page 81.
Figure 4-15 General EMC enclosure layout showing ground connections
Metal backplate
Optional
ground
connection
External
controller
0V
If the control circuit 0V
is to be grounded, this
should be done at the
system controller only to
avoid injecting noise
currents into the 0V circuit
Grounding bar
PE
~
PE
If ground connections are
made using a separate
cable, they should run
parallel to the appropriate
power cable to minimise
emissions
Use four core cable to
connect the motor to the drive.
The ground conductor in the
motor cable must be connected
directly to the earth terminal of
the drive and motor.
It must not be connected directly
to the power earth busbar.
The incoming supply ground
should be connected to a
single power ground bus bar
or low impedance earth
terminal inside the cubicle.
This should be used as a
common 'clean' ground for all
components inside the cubicle.
3 phase AC supply
Optional EMC
filter
Metal backplate
safety bonded to
power ground busbar
Unidrive M frame7 to 10 Power Installation Guide issue5.book Page 76 Tuesday, May 24, 2016 11:52 AM

Table of Contents

Other manuals for Emerson Unidrive M700

Related product manuals