EasyManua.ls Logo

Emerson Unidrive M701 - Page 41

Emerson Unidrive M701
120 pages
To Next Page IconTo Next Page
To Next Page IconTo Next Page
To Previous Page IconTo Previous Page
To Previous Page IconTo Previous Page
Loading...
Unidrive M / HS Frame 7 to 10 Power Installation Guide 41
Issue Number: 5
Safety information Product information
Mechanical installation
Electrical installation Technical data UL listing information
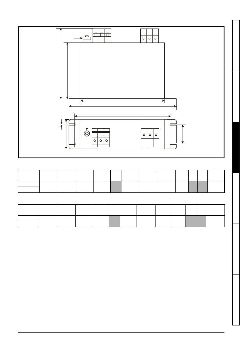
Figure 3-18 External EMC filter (size 7 to 8)
Table 3-8 Size 7 external EMC filter dimensions
Table 3-9 Size 8 external EMC filter dimensions
CT part
number
ABCDEFHWVXYZ
4200-1132
240 mm
(9.45 in)
255 mm
(10.04 in)
55 mm
(2.17 in)
150 mm
(5.90 in)
205 mm
(8.07 in)
270 mm
(10.63 in)
90 mm
(3.54 in)
M10
6.5 mm
(0.26 in)
4200-0672
CT part
number
ABCDEFHWVXYZ
4200-1972
260 mm
(10.24 in)
275 mm
(10.83 in)
85 mm
(3.35 in)
170 mm
(6.69 in)
249 mm
(9.79 in)
300 mm
(11.81 in)
120 mm
(4.72 in)
M10
6.5 mm
(10.26 in)
4200-1662
F
D
V
V
Z
B
L1 L2 L3L1 L2 L3
Load Line
W
C
A
H
Unidrive M frame7 to 10 Power Installation Guide issue5.book Page 41 Tuesday, May 24, 2016 11:52 AM

Table of Contents

Other manuals for Emerson Unidrive M701

Related product manuals