EasyManua.ls Logo

Epson PLQ-50 - Page 76

Epson PLQ-50
95 pages
Print Icon
To Next Page IconTo Next Page
To Next Page IconTo Next Page
To Previous Page IconTo Previous Page
To Previous Page IconTo Previous Page
Loading...
Do not load passbooks that are creased or have ripped seams.
Do not use a passbook that has metallic parts such as staplers or metal clips.
Do not use a passbook with sticky parts such as stamps or seals.
Do not use a passbook that has any pages smaller than the cover page.
Do not print on the front or back cover of a passbook. Printing can be done only when the passbook is
opened.
When you use paper that is shorter than 110.0 mm, set the paper eject direction to front. The factory
set default is front. Please access http://www.epson.com for information.
Do not load paper that is curled, folded, or crumpled.
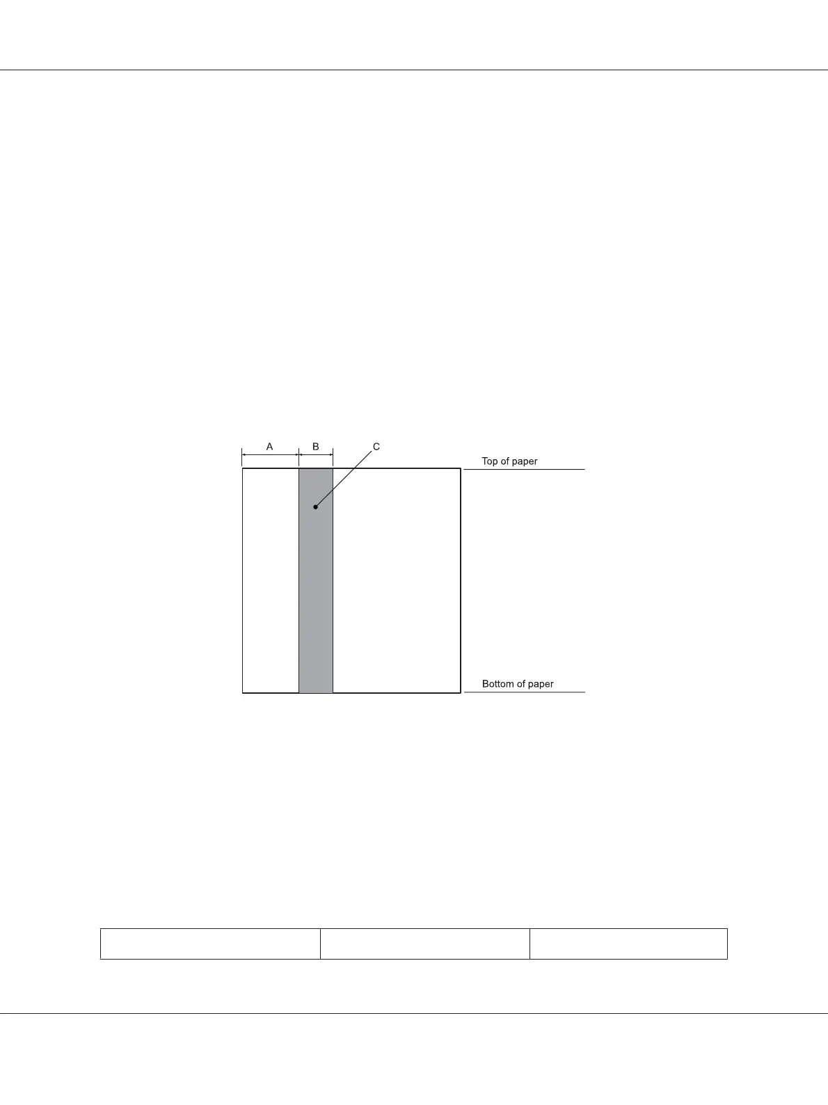
Do not punch holes in the area from 25.0 to 40.0 mm from the left edge of paper. See the illustration
below.
A25.0 mm
B15.0 mm
C Do not punch holes in this area.
When using the printer driver, the minimum achievable top and bottom margins are 1.0 mm (0.04
inch) and 9.0 mm (0.36 inch) respectively.
Passbook
Horizontal-fold Vertical-fold
PLQ-50/PLQ-50CS/PLQ-50M/PLQ-50CSM/PLQ-50CSK User’s Guide
Product Information 76

Table of Contents

Related product manuals