EasyManua.ls Logo

ESAB ESP-600C - Page 58

ESAB ESP-600C
120 pages
Print Icon
To Next Page IconTo Next Page
To Next Page IconTo Next Page
To Previous Page IconTo Previous Page
To Previous Page IconTo Previous Page
Loading...
SECTION 6 Troubleshooting
ESP 400C and 600C Plasma Power Sources
6-20
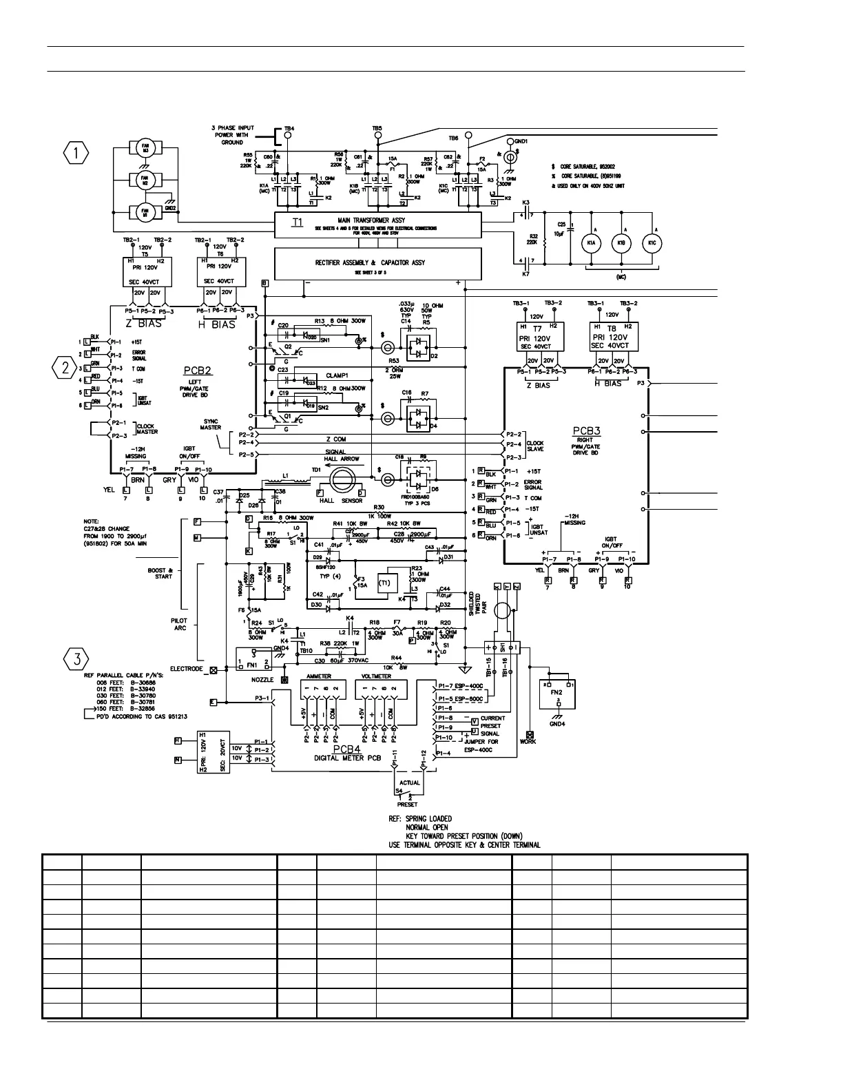
6.5 ESP-400C Schematic Diagrams - Drawing 1 - Part1
1a
2a
3a
4a
5a
6a
7a
8a
9a
BLK
BLK
GRY
GRY
LOC SYM Descrip LOC SYM Descrip LOC SYM Descrip
1 M1,2 Motor ,fan 1/3 hp 1 C14-16 Capacitor .033uf 630v 2 C24 Capacitor 5uf 600vdc
1 M3 Motor, fan 230v 50/60hz 1 D19,20,23 Module diode rectifier 630v 2 C13,15,17 Capacitor .033uf 630v
1 T1 Transformer main 1 R12,13 Resistor 8ohm 300w 2 K2 Contactor 3 pole 90A
1 T2 Transformer control 1 D2,4 Module diode Red 2 K4 Contactor 3 pole 40A
1 T5-8 Transformer 117/12/12/24ct 1 R5,7 Resistor 10ohm 50w 2 PL1 Lamp neon wht
1 K1A,B,C Contactor 3pole 90A 1 R53,54 Resistor 2ohm 25w 2 PL2 Lamp neon wht
1 PCB2 PC board circuit IGBT Driver 2 TD1,2 Transducer Current 2 PL3 Lamp indicator Amber
1 Q1-2 Module IGBT 600A 600V 2 PCB3 PC board IGBT driver 2 TS4,5,6 Switch thermal 176 deg.F
1 C19,20 Capacitor 27uf 1200vdc 2 Q3,4 Module IGBT 600A 600v 2 TS7 Switch thermal 194 deg.F
1 C23 Capacitor 5uf 800vdc 2 C21,22 Capacitor 27uf 1200vdc 2 TS1,2,3 Switch thermal 176 deg.F

Related product manuals