EasyManua.ls Logo

ESAB ESP-600C - Page 77

ESAB ESP-600C
120 pages
Print Icon
To Next Page IconTo Next Page
To Next Page IconTo Next Page
To Previous Page IconTo Previous Page
To Previous Page IconTo Previous Page
Loading...
SECTION 6 Troubleshooting
ESP 400C and 600C Plasma Power Sources
6-39
6.7 Wiring Diagrams – Drawing 2 – Part 2 400V 50H
z
(P/N 35879)
C2(+) BLU
C2(-) YEL
1
2
R10
R11
1
2
1 2
1 2
R53
R54
K7-4 BLK
"A"
"B"
"C"
X1
X1
X1
F8
F9
C23-2 VIO
C4(+) WHT
C24-1 VIO
C10(+) WHT
T1-CX4 WHT
T1-BX2 RED
M3
C
GC
G
C8(+) BLU
C8(-) YEL
PCB1 P7-9 BLU
NEG PLATE YEL
ELECTRODE PLATE GRY
PCB1 P5-9 BLK
PRA1
TB7
PRA1 YEL
C28(+) BLU
R20-2 BLU
F3-2 BLK
D31
D32
D29
D30
BLK
C41
C42
C43
C44
ORN
K4-T3 ORN
C27(-) WHT
S1-2 WHT
PRA1 GRY
C29(-) GRY
R21-2 GRY
TD2 (SPLICE) GRY
TD1 (SPLICE) GRY
ELECTRODE PLATE
POS
PLATE
NEGATIVE PLATE
F7-1 BRN
PCB1 P4-1 WHT
TB1-9 RED
K6-9 RED
PCB1 P6-1 ORN
K5-9 RED
R45
R52
2
1
34
5
6
7
9
10
11
12 13
8
TB7
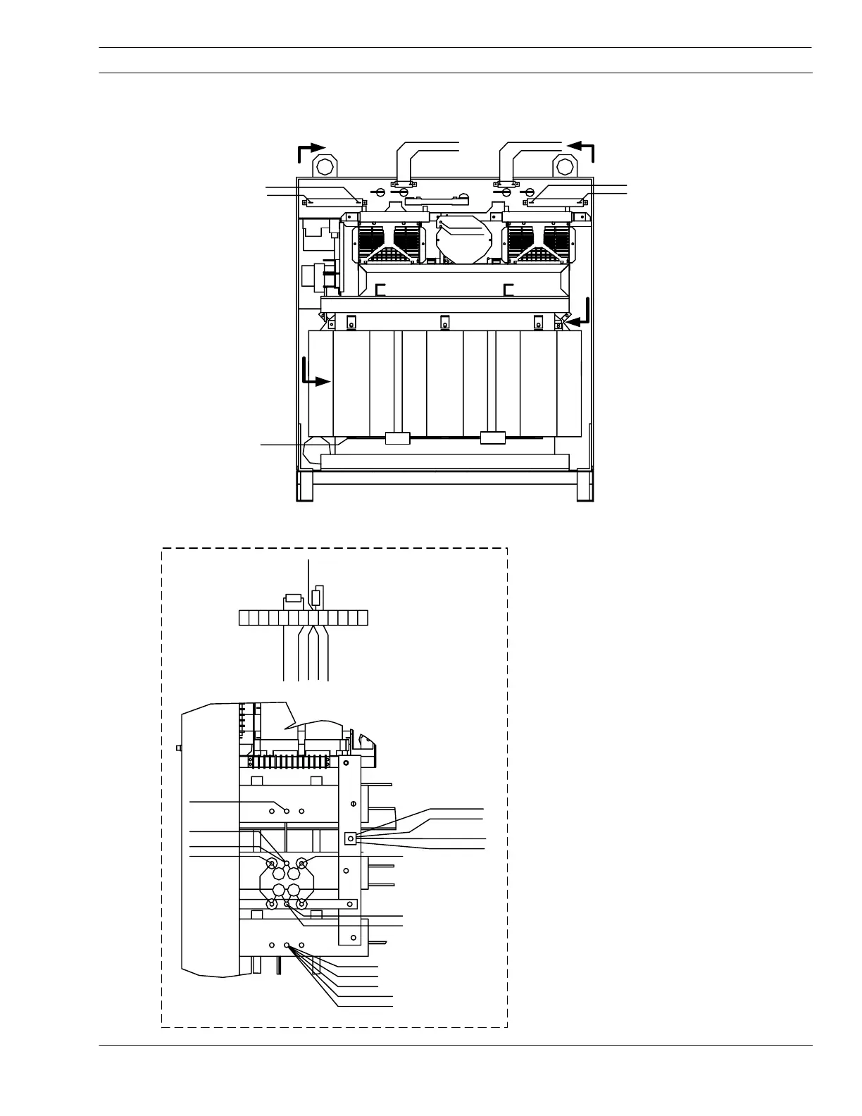
VIEW G-G
SECTION D-D
T2
Note: From ESP-400C/600C//400V,50 Hz
Drawing No. 0558002859, sheet 2 of 5
OR

Related product manuals