EasyManua.ls Logo

ESAB ESP-600C - Page 82

ESAB ESP-600C
120 pages
Print Icon
To Next Page IconTo Next Page
To Next Page IconTo Next Page
To Previous Page IconTo Previous Page
To Previous Page IconTo Previous Page
Loading...
SECTION 6 Troubleshooting
ESP 400C and 600C Plasma Power Sources
6-44
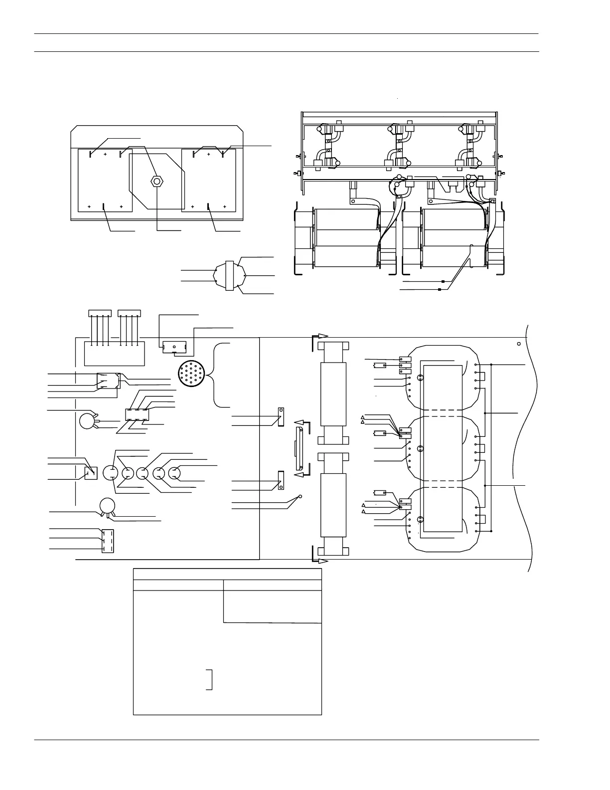
6.8 Wiring Diagrams – 575V 60H
z
Drawing 1 – Part 1 (P/N 35880)
YEL
ELECTRODE BUS BLK
BLU
WORK BUS BLU
TB10
FN1
FN2
GND4 GRN
K4-T1 YEL
GND4 GRN
3
3
Section A-A
TB1-10 BLK
TB1-12 BLK
PCB4 P1-1 GRN
PCB4 P1-2 GRN/YEL
PCB4 P1-3 GRN
H1
H2
T9
C47
D7,D8
BR"A" BUS
C50
D13
D14
C48 D9,D10
BR "B" BUS
C51
D15,
D16
C49
D11,
D12
C52
D17,
D18
BR "C" BUS
D27,
D28
C39
C40
TS3-1 WHT
TB9-21 BLK
D25,
D26
WHT
WHT
C38
C37
WHT
WHT
TS7
1
2
"B" COIL
"B" COIL
L1
"A" COIL
L2
"A" COIL
X1
X1
X1
X1
X3 YEL
X4 YEL
TB11-3 YEL
TB11-2 YEL
Section B-B
Ammeter
Voltmeter
K4-L1 BLK
R19-2 ORN
R17-1 YEL
D29/30 BUS WHT
S2-6 GRY
S2-3 RED
TB1-3 VIO
TB1-4 ORN
PCB1 P8-2 VIO
R50-2 RED
R50-3 GRY
TB1 6
GRY
PCB1 P8-1 GRY
TB1-5 BLU
POS PLATE RED
R24-2 BRN
FN4-3 BLK
TB1-10-A BLK
T2-X2
BLU
PCB1 P7-10 GRY
PCB1 P7-15 WHT
PCB1 P7-14 BRN
PCB1 P7-13 RED
PCB1 P7-12 VIO
PCB1 P7-11 BLK
TB1-12
WHT
TB1-11 WHT
TB1-9 RED
TB1-10-B BLK
TB1-18 BRN
TB9-24 YEL
TB9-24 YEL
PCB1 P9-11 VIO
PCB1 P9-5 GRY
TB9-21 BLK
FN1-1 BLK
PCB4 P3-1 BLK
FN1-3 GRN
FN2-3 GRN
FN2-2 BLU
PCB4 P1-4 BLU
J1
A TB1-1 BRN
B TB1-2 YEL
C TB1-4 ORN
D TB1-5 BLU
E TB1-9 RED
F TB1-7 BLK
G TB1-8 WHT
H GND 5 GRN
J TB1-13 GRY
K TB1-14 VIO
K3-4 RED
BR "A"
BUS
F5-1 BLU
R23-1 BRN
M3-2 RED
M2-2 RED
M1-2 RED
BR "B"
BUS
F5-2 BLU
F3-1 BRN
X2
X3
X4
X5
X6
X7
X8
X2
X3
X4
X5
X6
X7
X8
X2
X3
X4
X5
X6
X7
X8
BR "C"
BUS
M3-1 WHT
M2-1 WHT
M1-1 WHT
F4-1 BRN
D33 BUS GRY
2
1
2
1
2
1
TS4-1 WHT
H1
H2
H3
H4
TS7-2 WHT
K1C-T1.2.3 BLK
K1B-T1.2.3 BLK
K1A-T1.2.3 BLK
GND 1
L1
L2
GND 4
A
A
B
B
"A"
TS1
TS2
TS3
T1
"B"
"C"
WORK BUSELECTRODE BUS
R50
R51
PL1
PL2
PL3
PL4
PL5
3
2
1
1
2
3
S3
3
2
1
6
5
4
CB1
S1
5
3
1
6
4
2
4 5 6
1 2 3
S2
S4
1
2
3
PCB4
P2-1
P2-2
P2-3
P2-4
P2-5
P2-6
P2-7
P2-8
W
H
T
R
E
D
B
L
K
G
R
N
B
R
N
B
L
U
O
R
N
Y
E
L
PCB4 P1-11 VIO
PCB4 P1-12 GRY
A
B
C
D
E
F
G
H
J
K
L
M
N
P
R
S
T
U
V
1 7 8 2 1 7 8 2
1 T9-GRN
2 T9-GRN/YEL
3 T9-GRN
4 SHUNT 1-3 -BLU
5 TB1-15 RED (600C Only)
6 TB1-16 BLK
7 TB1-15 (400C Only)
8 TB9-2 WHT
9 TB9-1 ORN
PCB4 P1-10 ORN
10 PCB4 P1-9 ORN
11 S4-1 VIO
12 S4-2 GRY
PCB4
P1
P3
1 ELECTRODE BUS-BLK
ESP-400C
X9
X9
X9
Note: From ESP-400C/600C//575V
Drawing No. 0558002852, sheet 1 of 5
OR
H1
H2
H3
H4
H1
H2
H3
H4

Related product manuals