EasyManua.ls Logo

Estun E300 - Timing Chart B

Estun E300
46 pages
Print Icon
To Next Page IconTo Next Page
To Next Page IconTo Next Page
To Previous Page IconTo Previous Page
To Previous Page IconTo Previous Page
Loading...
E300 Operation Manual
Timing Charts
Document Version: V1.01
ESTUN AUTOMATION Proprietary
X
PROCESS
Retract
Delay
TDC
Mute
Pinching
BDC
Opening
Time
1
=
No Command
2 =
Fast Closing
3 =
Pressing
4 =
Dwell Time
5 =
Decompression
6 =
Opening
1 =
No Command
Beam
Position
Depend on the
settings of opening
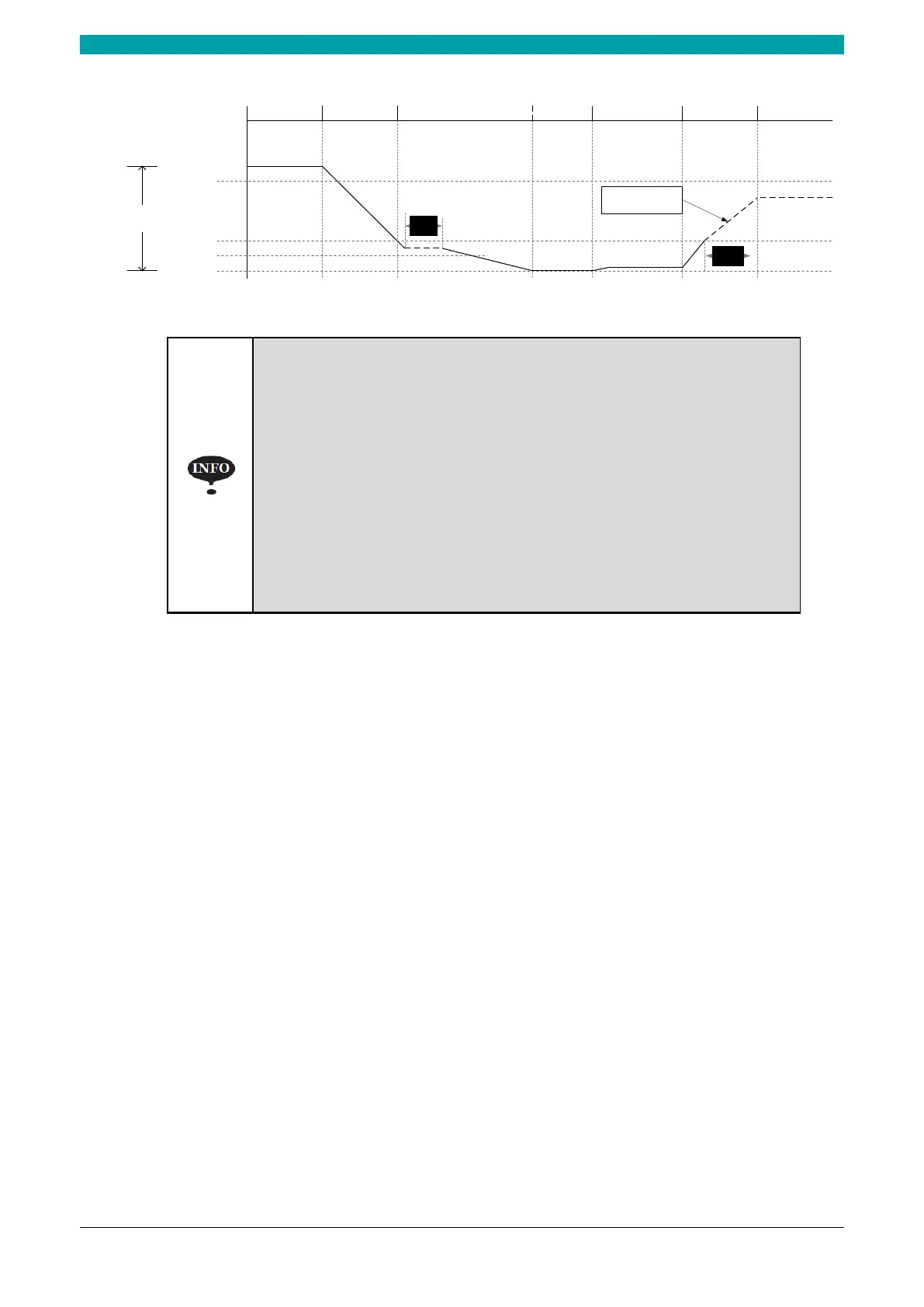
Figure C-2 Timing Chart B
In the case of retracting, let the Y-axis wait until the retract is
finished, you shall set the parameter Wait Retract to Yes.
When the beam has reached the TDC in opening, the TDC
signal can be turned ON and the beam stops the moving.
If you have set the parameter Retract in your programming,
the X-axis can start retracting when the Retr.DLY
time has
been finished. Then, the X-axis will not reposition until the next
step is started.
The opening time is started when the Mute Signal is turned
from ON to OFF.

Related product manuals