EasyManua.ls Logo

Evco EV3 HRV - Page 24

Evco EV3 HRV
74 pages
Print Icon
To Next Page IconTo Next Page
To Next Page IconTo Next Page
To Previous Page IconTo Previous Page
To Previous Page IconTo Previous Page
Loading...
EVCO S.p.A.
EV3 HRV & EVD HRV | Application manual ver. 1.0a | Code 1443DHRVE104
page 24 of 74
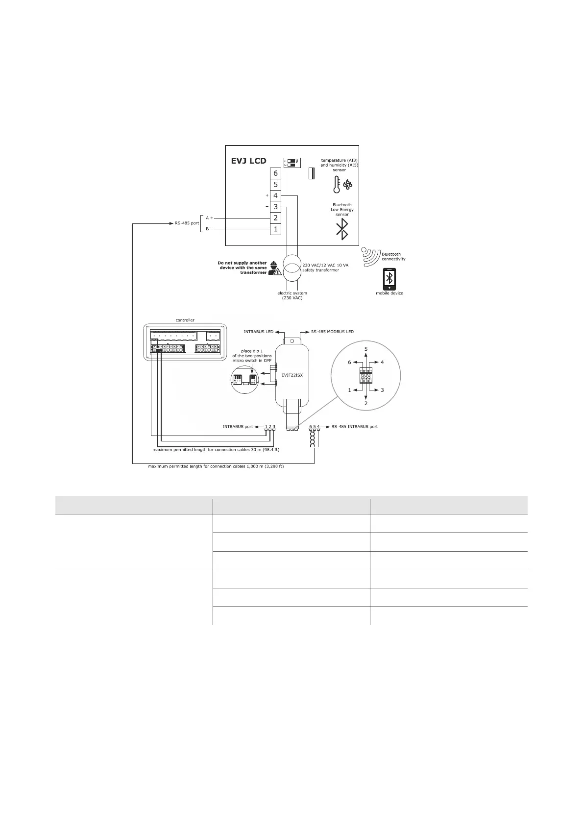
Example 2 of electrical connection: EVJ LCD has a RS-485 serial port (purchasing code EVJD900N2VWTX) with INTRABUS
communication protocol and is powered by a safety transformer.
N.B.:
- Do not supply another device with the same transformer
- the INTRABUS/RS-485 serial interface EVIF22ISX is required
- The maximum permitted length for connection cables of the RS-485 port is 1,000 m (3,280 ft).
The table below describes the EVIF22ISX connectors.
Port Part Meaning
INTRABUS
1 12 V
2 signal INTRABUS port
3 reference (GND) INTRABUS port
RS-485
4 reference (GND) RS-485 port
5 negative signal RS-485 port
6 positive signal RS-485 port

Table of Contents

Related product manuals