EasyManua.ls Logo

Everlasting STAGIONATOR - Demolizione E Smaltimento

Everlasting STAGIONATOR
Print Icon
To Next Page IconTo Next Page
To Next Page IconTo Next Page
To Previous Page IconTo Previous Page
To Previous Page IconTo Previous Page
Loading...
5
STAGIONATORE
3.3 CABLAGGIO E ALLACCIAMENTO ELETTRICO
L’impianto e l’allacciamento elettrico devono essere eseguiti da personale qualificato.
Ai fini della sicurezza, è necessario attenersi alle seguenti indicazioni:
- verificare che il dimensionamento dell’impianto sia adeguato alla potenza assorbita
dalla macchina
- in caso di incompatibilità tra la presa e la spina della macchina, sostituire la presa
con altra di tipo adatto, purché a norme
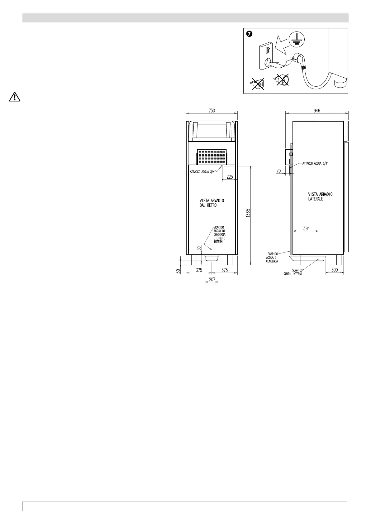
- non interporre adattatori e/o riduzioni ( Fig. 7 )
È
indispensabile collegare correttamente la macchina ad un efficace impianto di messa
a terra, eseguito come previsto dalle vigenti disposizioni di legge.
Collegamento alla rete idrica
Tutti i modelli di Stagionatore hanno necessità di un collegamento
alla rete idrica per assolvere le funzioni di controllo e
gestione umidità. Il collegamento alla rete idrica dovrà essere
effettuato secondo le istruzioni del costruttore, e da personale
professionalmente qualificato. Il raccordo del diametro pari a
3/4 di pollice per il collegamento alla rete idrica si trova nella
parte posteriore destra dell’armadio, a 150 cm da terra. Questo
apparecchio dovrà essere alimentato esclusivamente con acqua
fredda non distillata o demineralizzata. La pressione di esercizio
dovrà essere compresa tra 0,1 e 0,3 MPA.
È consigliabile installare un rubinetto per escludere l’alimentazione
dell’acqua in caso di manutenzione. È altresì importante, in caso
di acqua particolarmente dura, dotare la rete di un apposito
addolcitore. La presenza di elementi solidi, per esempio sabbia,
potrà essere eliminata installando un filtro meccanico, che dovrà
essere ispezionabile e pulito periodicamente.
3.4 OPERAZIONI DI MESSA A PUNTO
È importante, per prevenire errori ed incidenti, eseguire una
serie di controlli prima di avviare la macchina, allo scopo di
individuare eventuali danni subiti nelle operazioni di trasporto,
movimentazione e allacciamento.
Controlli da effettuare
- verificare l’integrità del cavo di alimentazione (non deve aver subito abrasioni o tagli)
- verificare la solidità dei piedini, delle cerniere delle porte, dei supporti dei ripiani
- verificare l’integrità degli organi interni ed esterni (tubazioni, elementi radianti, ventilatori, componenti elettrici ecc.) ed il loro
fissaggio
- verificare che le guarnizioni delle porte e cassetti non abbiano subito danni (tagli o abrasioni) e chiudano ermeticamente
Vengono fornite inoltre le indicazioni che l’utilizzatore deve seguire per ottenere le migliori condizioni di funzionamento della
macchina.
Indicazioni per il funzionamento ottimale
- non ostruire le prese d’aria del vano-motore
- richiudere accuratamente le porte
- tenere sempre sgombro il foro di scarico dell’acqua di sbrinamento
- limitare, per quanto possibile, la frequenza di apertura delle porte e la loro durata. Ogni apertura provoca un cambiamento
della temperatura interna
- effettuare periodicamente la manutenzione ordinaria (vedi cap.5)
3.5 REINSTALLAZIONE
È necessario rispettare la seguente procedura :
- spegnere la macchina mediante interruttore generale
- scollegare il cavo di alimentazione dalla presa di corrente
- la movimentazione va effettuata come descritto nel par. 3.1
- per il nuovo piazzamento e allacciamento si rinvia ai par. 3.2 e 3.3
3.6 DEMOLIZIONE E SMALTIMENTO
La demolizione e lo smaltimento devono essere effettuati in ottemperanza alle normative vigenti nel proprio Paese.

Related product manuals