EasyManua.ls Logo

fadini Elpro S40 - Page 27

fadini Elpro S40
Print Icon
To Next Page IconTo Next Page
To Next Page IconTo Next Page
To Previous Page IconTo Previous Page
To Previous Page IconTo Previous Page
Loading...
1 2 3 4 5 6 7 8 9 10 11 12 13 14 15 16 17 18 19 20 21
A B A B
27
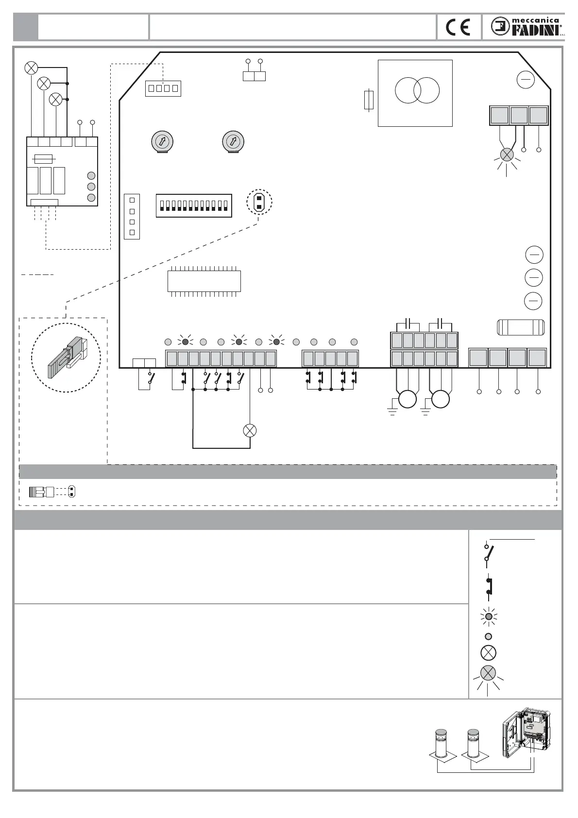
COMÚN
ABRE
CIERRA
RADIO
INDICADOR
24 V - 3 W máx
BLOQUEO
T1
TIEMPO DE TRABAJO
1 s - 22 s
T2
TIEMPO DE PAUSA
1 s - 180 s
L1
L6
L7
L3
L8
L4
L5
L2
L9 L10 L11
Fusible
secundario
transformador
F4 = 2A
Fusible
primario
transformador
F3 = 630 mA
Fusible electroválvula
zumbador, destellador
y led F5 = 2 A
Fusible motor M2
F2 = 5 A
Fusible motor M1
F1 = 5 A
COMÚN
M1 M2
COMÚN
Rojo
Amarillo
Verde
Entrada P
57 58
63 64 65 66 60 61
SALIDA 24 Vdc
+ -
55 56
TRANSFORMADOR
1 2
COMÚN
FINAL DE CARRERA
ABERTURA
M1 (
Columna baja)
FINAL DE CARRERA
ABERTURA M2 (Columna baja
)
FINAL DE CARRERA CIERRE
M1 (Columna levantada)
FINAL DE CARRERA CIERRE
M2 (Columna levantada)
Borne para contacto
Paso peatonal
motor barrera M1
FOTOCÉLULAS O
ESPIRA MAGNÉTICA
SALIDA 24 V - 250 mA
para carga máx:
- n° 2 pares de fotocélulas
- n° 1 radio receptor
MOTOR M1
Poste n° 1
MOTOR M2
Poste
n° 2
NEUTRO
FASE
N
F
Filtro anti-interferencia
COMÚN
Elpro S20
Puente STRIP
TOPES DE RECORRIDO
ELPRO S20
Cond. 20 µF
M1
20 VA - 50/60 Hz
2322 24 25
Cond. 20 µF
M2
SUPPORTO PER
SCHEDA RADIO
AD INNESTO
DIAGNÓSTICO DE LOS TOPES DE RECORRIDO
ALIMENTACIÓN
ESTABILIZADOR
230 V - 50 Hz
PARA ELECTROVÁLVULA
ALIMENTACIÓ CUADRO
230 V ±10% 50 Hz
MONOFÁSICO
Rojo
DESTELLADOR
230 V - 100 W max
LED DE SEÑALIZACIÓN
230 V - 100 W max
Fusible 1 A
ACOPLE PARA SEMÁFORO
DE 3 LÁMPARAS MÁX 100 W
POR LÁMPARA
Amarillo
Verde
Común
Alimentación
230 V - 50 Hz
(Opcional: tarjeta semáforo de
empalme para lámparas de 230 V)
cód. 7282L
Postes con topes de recorrido serie Coral, Vigilo, Talos, Talos M30, Strabuc 930 Opinat: estando el puente STRIP conectado (según la gura), el
aparato Elpro S20 averigua con un tiempo cíclico de 10 minutos que los topes de recorrido de cierre (columna levantada) se encuentren en posición
correcta; de lo contrario, sólo el motor del poste que no está en posición arranca, hasta tanto que se alcance la posición correcta de subida.
Cuidado: cada vez que se restablece la alimentación al aparato Elpro S20, hay que esperar 10 segundos para que la lógica del programador vuelva a funcionar de
manera.
El programador Elpro S20 se utiliza en la barrera escamoteable serie Talos, Talos M30, Strabuc 930 Opinat, Coral y Vigilo; alimentado a 230 V
monofásico.
Elpro S20 se distingue por la capacidad de monitorear posibles averías o malfuncionamientos del equipo (CSI).
C.S.I. = Circuito de Supervisión de Integridad, es una función especial del programador Elpro S20 que permite monitorear toda la tarjeta
electrónica con el objetivo de detectar cualquier avería de un componente o un malfuncionamiento de un accesorio del equipo, por lo que,
si la automación posee una Electroválvula de desbloqueo, permite bajar la columna escamoteable.
La empresa fabricante no asume ninguna responsabilidad por el uso impropio del programador además se reserva el derecho de aportar
modicaciones y actualizaciones al presente manual y al programador sin preaviso.
IMPORTANTE PARA LA INSTALACIÓN Y EL CORRECTO FUNCIONAMIENTO:
- El programador debe ser instalado en un luogo seco y protegido, se proporcionan sobre los oricios de saje sobre el contenedor universal
FADINI y sobre una caja comercial.
- Asegurarse que la alimentación al programador electronico sea de 230 V ±10%.
- Asegurarse que la alimentación al motor eléctrico sea 230 V ±10%.
- Para distancia superior a los 50 metros aumentar la sección de los cables.
- Aplicar un interruptor magnéto-termico diferencial de tipo 0,03 A ad alta sensibilidad a la alimentación del programador.
- Para alimentación, motor eléctrico y destellador utilizar cable de sección desde 1,5 mm² hasta 50 m de distancia.
- Para nal de carrera, fotocélulas, pulsadores y accesorios utilizar cable desde 1 mm².
N.B.: para aplicaciones como interruptor de las luces, cámaras, etc. utilizar relé estáticos para no crear perturbaciones en el microprocesador.
EN CASO FALTA EL FUNCIONAMIENTO:
- Asegurarse que la alimentación al programador electronico sea 230 V ±10%.
- Asegurarse que la alimentación al motor eléctrico sea 230 V ±10%.
- Para distancia superior a los 50 metros aumentar la sección de los cables.
- Comprobar todos los fusibles.
- Comprobar que las fotocélulas están en contacto cierre.
- Comprobar todos los contactos NC del programador.
- Comprobar la correcta conexión y funcionamiento de los nales de carreras.
- Si está la electroválvula controlar la integridad de todos los fusibles.
- Controlar que no haya una caída de tensión entre el programador y el motor eléctrico.
ON
OFF
1 2 3 4 5 6 7 8 9 10 11 12
5251 53
SIMBOLOGÍA:
Contacto NA
Contacto NC
Led encendido
Led apagado
Espia o lámpara
Destellador
-
+
-
+
E
PROGRAMADOR ELECTRÓNICO PARA LA GESTIÓN DE HASTA DOS
BOLARDOS RETRÁCTIL, CON SIN FINAL DE CARRERA
Elpro S20
12
1
2
ELPRO S20
ELPRO
S20
VERS.

Related product manuals