EasyManua.ls Logo

Fantech DBF110 - Dimensional Data; Installation Guidelines; Fan and Switch Mounting; Calculating Duct Run

Fantech DBF110
16 pages
Print Icon
To Next Page IconTo Next Page
To Next Page IconTo Next Page
To Previous Page IconTo Previous Page
To Previous Page IconTo Previous Page
Loading...
4
fantech
Installation Guidelines
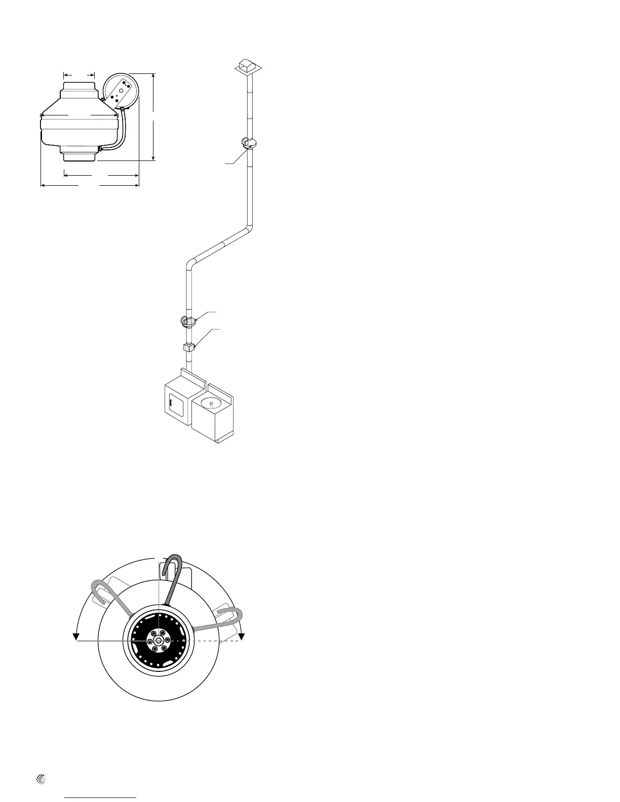
Fan and Switch Mounting
The DBF110 is to be mounted a minimum of 5 linear (not equivalent) feet
from the dryer outlet. A secondary lint trap (DBLT 4W) is recommended
if the fan is installed between 5 and 15 linear (not equivalent) feet from
the dryer outlet in applications, where excessive dryer lint generation is
likely or to increase the time interval between routine maintenance of the
Dryer Booster Fan (See illustration to left). An NB mounting bracket
attached to a rafter or joist should be used to stabilize the fan. Although
not recommended, a vertical rigid duct may support the fan if the duct is
securely stabilized. (Consult local codes prior to supporting the fan in the
duct alone.) Duct work should be attached to the inlet and outlet of the
fan by means of FC vibration isolation clamps (not included) or duct tape.
The duct connection should be properly sealed to prevent leakage and
loss of fan performance. Flex duct connections between the dryer duct
connection and exhaust duct should be stretched as smooth as possible.
Calculating Duct Run
To calculate the length of your planned duct run, measure from the dryer
to external venting point in roof or wall. For each bend or elbow add 5-7
feet to your total duct run calculations. The DBF110 can be used on runs
up to 108 feet.
Pressure Sensor Switch Operation
Fantech’s DBF110 is equipped with Fantech's Patented DB10 pressure
switch. The DB10 is a positive pressure sensing switch which
recognizes dryer operation and activates the booster fan from an
independent electrical circuit. This eliminates connections through the
dryer circuit which may void the manufacturers’ warranty as well as
manual systems which require the attention of the operator or costly
current/temperature sensing systems.
The electricity to the booster fan is connected in series through a
normally open terminal on the switch. A pressure tap is connected to a
fitting on the side of the switch. When the dryer begins operation,
positive pressure in the duct causes the switch diaphragm to expand,
closing the circuit to the booster fan. An integral delay-on-break timer in
the switch will cycle the fan on for intervals of 10 minutes. This will con-
tinue until the dryer has stopped and the timer delay period has lapsed.
Drying cycles, the booster fan, the delay timer and the pressure switch
are not adversely affected by the starting/stopping intervals.
Dimensional Data
12
1
/2”
11
1
/4”
9
1
/2”
9
1
/2”
3
7
/8”
Illustration 1
DBF110
Alternative Location
Secondary Lint Trap
12-o-clock
2-o-clock
10-o-clock
Sensitivity Adjustment Instruction
a. Disconnect power to the booster fan.
b. Looking from the inlet (dryer side), the switch should be at the
12-o-clock position.
c. Remove the 2 mounting screws holding the switch to the fan.
d. Rotate the switch to the 10-o-clock position for less sensitivity or
2-o-clock position for more sensitivity then secure it there, you may
have to adjust (bend) the bracket to fit. Secure the switch with the
2 screws previously removed.
e. Apply power to the fan and check for operation.
Dimensions are in inches.

Other manuals for Fantech DBF110

Related product manuals