EasyManua.ls Logo

Faraday 15220A - Page 45

Default Icon
66 pages
Print Icon
To Next Page IconTo Next Page
To Next Page IconTo Next Page
To Previous Page IconTo Previous Page
To Previous Page IconTo Previous Page
Loading...
III- 30
COMPATIBLE ACCESSORY DEVICES
Mfg. Order No. Description
Cat. No.
FARADAY INC.
R711-1 711-1 Remote Relay Unit
15222A 15222A Signal Expander Panel
5405 SYNC Control Module
5406 SYNC Control Module
RSE-100 15070 Remote Signal Extender
Notes:
1.) The accessory devices listed above may be wired to activate from the signal circuit.
2.) For specific wiring and installation information, read the instructions provided with each device.
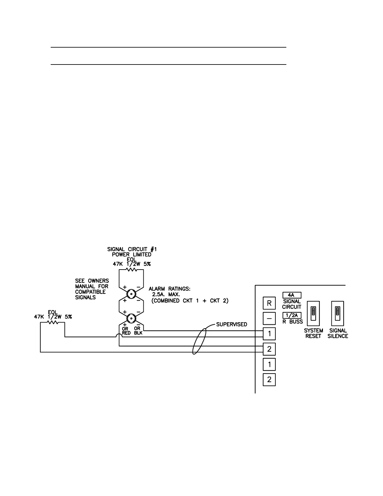
SIGNAL CIRCUIT WIRING
For proper Signal Circuit operation and supervision,
the sbove diagram must be used and followed.
firealarmresources.com

Related product manuals