EasyManua.ls Logo

Faraday RND-2 - Wiring Separation and Module Placement

Default Icon
108 pages
Print Icon
To Next Page IconTo Next Page
To Next Page IconTo Next Page
To Previous Page IconTo Previous Page
To Previous Page IconTo Previous Page
Loading...
MPC-6000 / MPC-7000 / RND-2 INSTALLATION, OPERATION AND MAINTENANCE MANUAL
44
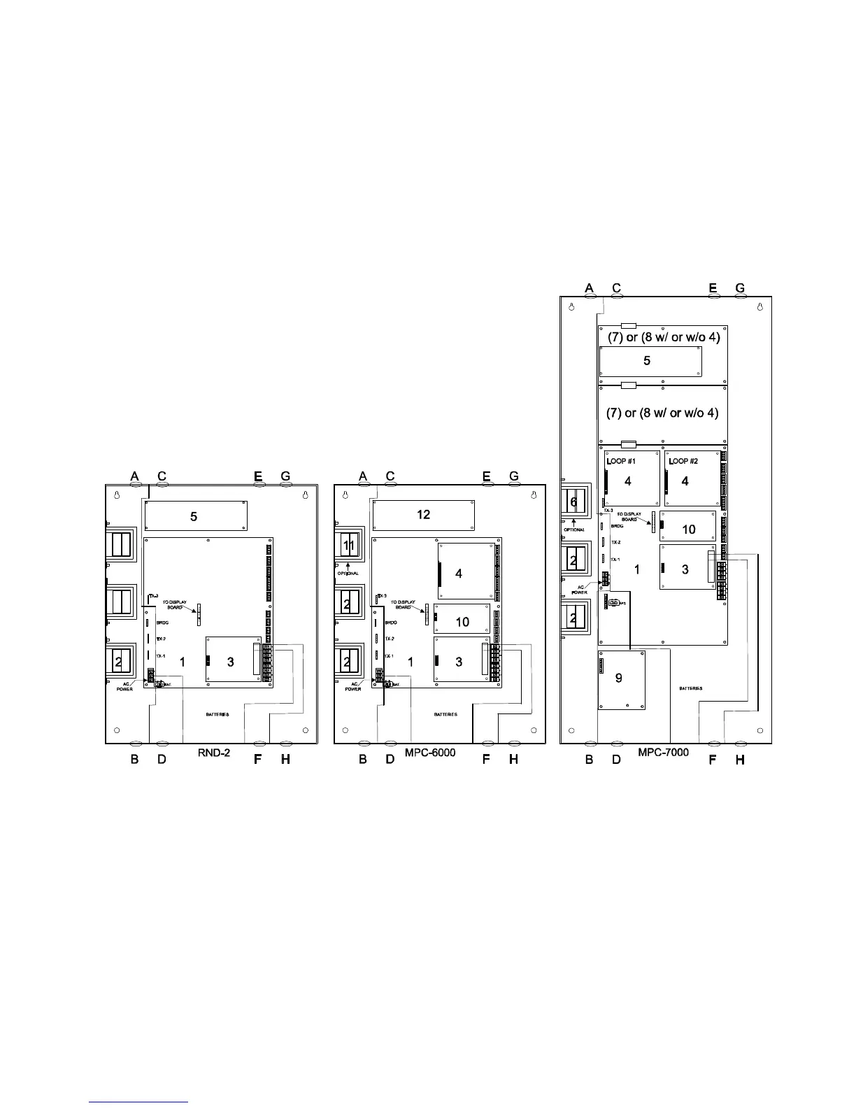
Wiring Separation and Module Placement
All high voltage and non-power limited wiring must be kept separate from power limited wiring.
A separation of at least a 1/4 inch must be maintained, with high voltage and non-power limited
wiring running in separate conduit openings from power limited wiring.
KNOCKOUTS FOR MPC
-
6000/MPC7000/RND
-
2
A Non-power limited - High Voltage
(AC power) or B
B Non-power limited - High Voltage
(AC power) or A
C Power limited
D Non-power limited
(Battery If external enclosure required)
E Power limited (non-power limited if MPC-REL is used)
F Non-power limited if Local Energy Box used
F Power limited or G or H
G Power limited or F or H
H Power limited or F or G
6. NPE-1 Expansion Transformer
7. NEM-1 NAC Expansion Module
8. LEM-1 Loop Expansion Module
9. HBC-1 Optional Battery Charger
10. Future Expansion
11. NPE-1 Expansion Transformer or
RPT-1 if MPC-REL is installed.
12. 12603A Network Interface
Board or MPC-REL Module.
SYSTEM MODULES FOR MPC
-
6000/MPC
-
7000/RND
-
2
1. Main Board
2. NPE-1 Transformer
3. MPC-DACT DACT Board or CT-1K City Tie
4. FDLC Loop Driver Board requires Main Board
or LEM-1 Loop Expansion Board
5. 12603A Network Interface Board
Note: Cannot be used with an expansion module
in the uppermost position.

Table of Contents

Other manuals for Faraday RND-2

Related product manuals