EasyManua.ls Logo

Farfisa FC42 - Page 10

Farfisa FC42
Print Icon
To Next Page IconTo Next Page
To Next Page IconTo Next Page
To Previous Page IconTo Previous Page
To Previous Page IconTo Previous Page
Loading...
Mi 2260
- 10 -
-compor um mero compreendido entre 00 e
03 para programar o modo de ativação do
relé (para a escolha dos códigos, ver o
capítulo
modos de funcionamento e digos
a serem incluídos na programação
”)
-pressionar a tecla A
-compor um mero compreendido entre 00 e
03 para programar o modo de ativação do II°
relé (para a escolha dos códigos, ver o
capítulo
modos de funcionamento e digos
a serem incluídos na programação
”)
-pressionar a tecla A. O LED vermelho lampeja.
-compor o número 55
-pressionar a tecla A. O LED vermelho lampeja.
Retorno à programação de base
Para cancelar rapidamente todos os códigos
programados e recolocar o teclado na progra-
mação originária (ver os códigos no capítulo
programação de base
”) é necessário:
-retirar a alimentação do teclado
-fornecer alimentação novamente ao teclado,
mantendo pressionada a tecla B até que seja
ouvido um sinal acústico de confirmação.
Notas:
-Marcar na tabela resumida o código de pro-
gramação e todos os códigos de abertura do
relé.
-Somente aquele que conhecer o código de
programação poderá variar os códigos de
abertura do relé.
-Um sinal acústico avisa que os botões foram
pressionados.
-Na eventualidade que seja composto um
código errado, será ouvido um sinal de
dissuasão com a desativação simultânea dos
botões por 2 segundos.
-Durante as fases da programação, caso não
se queira substituir um código, pressionar a
tecla A. Isto permitia passagem para a fase
sucessiva sem modificar o código.
-O código de programação e os códigos de
abertura do relé devem ser diferentes uns dos
outros.
-Para cancelar o último número composto,
pressionar a tecla B.
FUNCIONAMENTO
-Compor o código relativo ao relé que se
deseja ativar.
-Pressionar a tecla A. O LED verde acende-
se e o relé é ativado pelo tempo e com o modo
de funcionamento programado.
Notas:
-Pressionando a tecla B é possível cancelar
um código composto erroneamente e não
confirmado.
-Se um código errado for composto e confir-
mado pela tecla A, será ouvido um sinal de
dissuasão com a simultânea desativação dos
botões por aproximadamente 3 segundos.
Este tempo é incrementado até o máximo de
30 segundos, cada vez que se compõe um
código errado.
-Os números compostos e não confirmados
com a tecla A são cancelados automatica-
mente depois de 25 segundos a partir da
última tecla pressionada.
FUNCIONAMENTO BIESTÁVEL
Para ativar os relés por um tempo indetermi-
nado (função possível somente se o teclado
tiver sido oportunamente programado. Ver.
Substituição tempos e modos de ativação
dos relés”)
, é necessário:
-compor um dos códigos relativos ao relé que
se deseja ativar
-pressionar a tecla A.O LED verde acende-se
o relé ativa-se por um tempo indeterminado
-para desativar o relé, compor novamente o
digo
-pressionar a tecla A. O LED verde e o relé
desativam-se.
ATIVÃO DIRECTA
Pressionar a tecla A para ativar diretamente os
relés (função possível somente se o teclado
tiver sido oportunamente programado. Ver.
Substituição tempos e modos de ativação
dos relés”)
. Se ambos os relés tiverem sido
programados para serem ativados pela tecla
A, se possível um habilitão simulnea dos
2 relés.
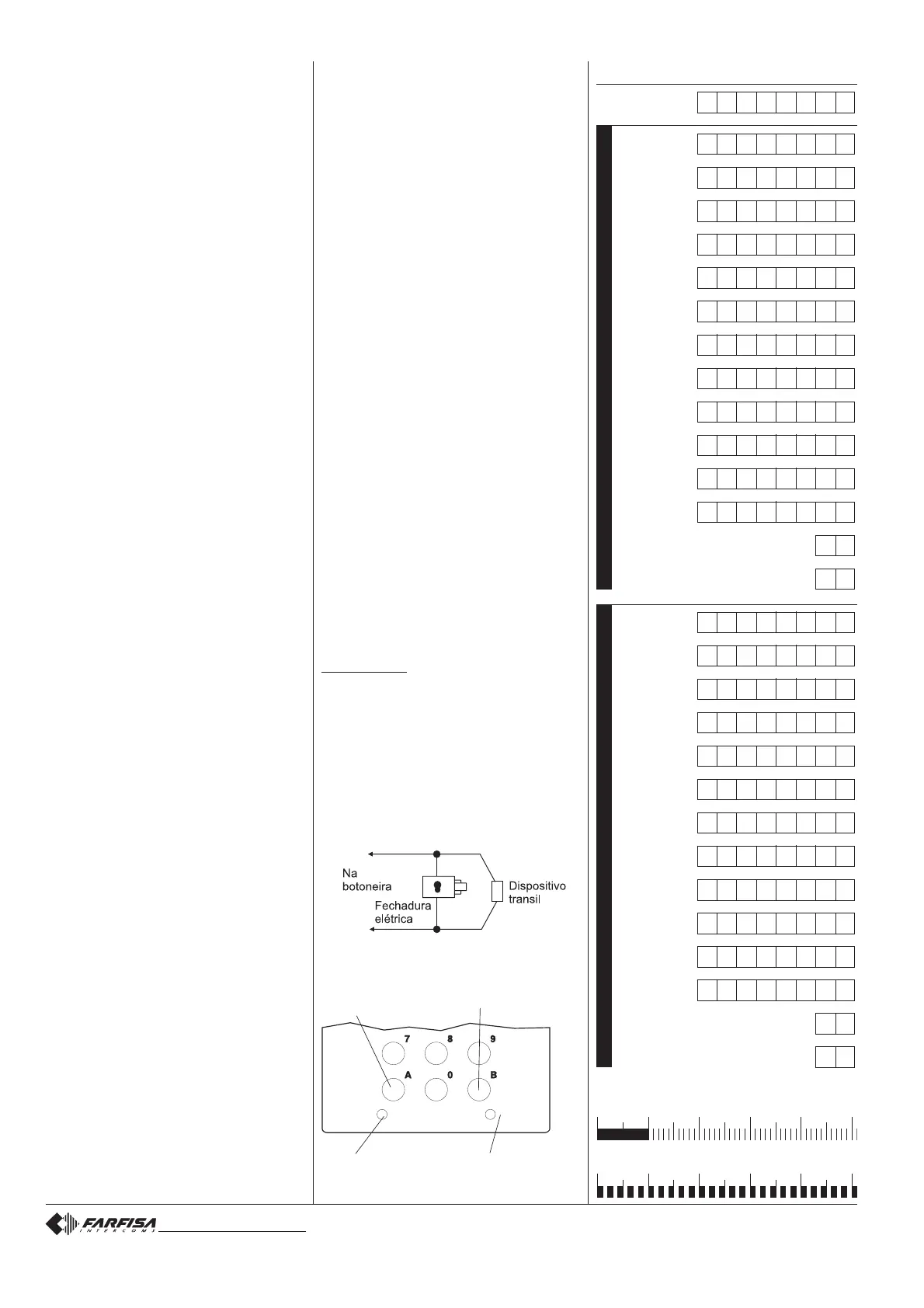
BOTÕES ABRE-PORTA
Aos terminais P1, P2 e massa podem ser
ligados 2 botões para ativar diretamente os 2
relés com os tempos e os modos de funciona-
mento programados.
EMERGÊNCIA
Na falta de energia elétrica todos os dados
permanecem na memória em modo perma-
nente.
IMPORTANTE
Com a finalidade de respeitar a Diretiva Euro-
ia sobre a Compatibilidade Eletro-magnéti-
ca e para aumentar a credibilidade do produto,
é necessário conectar um dispositivo de su-
pressão dos distúrbios quando se comanda
um carregamento indutivo, por exemplo uma
fechadura elétrica. Os supressores incluídos
(transil) devem ser conectados o mais próximo
possível do carregamento (teoricamente, di-
rectamente sobre os terminais do mesmo).
Tabela résumida dos códigos
Código
programação
1° código
2° código
3° código
4° código
5° código
6° código
7° código
8° código
9° código
10° código
11° código
12° código
Tempo de ativação
Modo de ativação
1° código
2° código
3° código
4° código
5° código
6° código
7° código
8° código
9° código
10° código
11° código
12° código
Tempo de ativação
Modo de ativação
r
e
l
é
1
r
e
l
é
2
Tabela dos tons
Confirmacão
Dissuaso
0 1 2 3 4 5
0 1 2 3 4 5
LED vermelho
Indicação ambiente
de programação.
LED verde
Indicação de códi-
go aceito.
Botão A.
Teclado de confirmação
e ativação direta dos
relés (se programado).
Botão B.
Teclado de cancela-
mento.