EasyManua.ls Logo

Fassi F 80A.23 - 5 ELECTRIC SCHEMATICS; Electric schematic for crane

Default Icon
94 pages
Print Icon
To Next Page IconTo Next Page
To Next Page IconTo Next Page
To Previous Page IconTo Previous Page
To Previous Page IconTo Previous Page
Loading...
5
ELECTRIC SCHEMATICS
GR2_45»60_3_4_SE
5 ELECTRIC SCHEMATICS
Electric schematic for crane
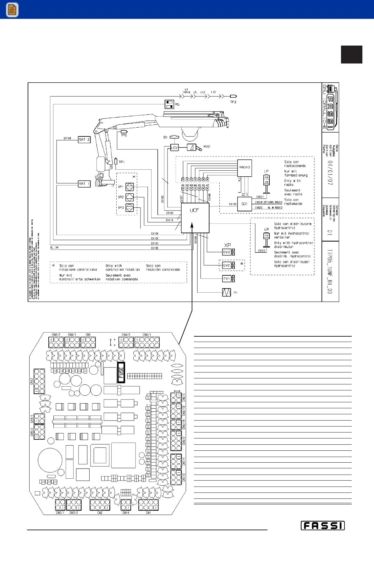
DESCRIPTION
ALIM ELECTRICAL FEED CABLE MAIN CONTROL PANEL
EV1 ELECTROVALVE FOR CRANE BLOCK
EV2 ELECTROVALVE FOR LIFTING MOMENT LIMITING DEVICE OF THE TWO WORKING ZONES
EV3 XP ELECTROVALVE
LP FLASHING
IP1/2/3 PROXIMITY MICROSWITCH FOR ROTATION CONTROL
LCV WINCH LOAD LIMITING DEVICE
LR ACTIVATION OF OVERLOAD BLOCK RED WARNING LIGHT
M1 MICROSWITCH ON THE DISTRIBUTOR (ROTATION)
M2 MICROSWITCH ON THE DISTRIBUTOR (INNER BOOM)
M3 MICROSWITCH ON THE DISTRIBUTOR (OUTER BOOM)
M4 MICROSWITCH ON THE DISTRIBUTOR (CRANE EXTENSION BOOMS)
M5 MICROSWITCH ON THE DISTRIBUTOR (JIB BOOM)
M6 MICROSWITCH ON THE DISTRIBUTOR (JIB EXTENSION BOOMS)
M7 MICROSWITCH ON THE DISTRIBUTOR (WINCH)
MS MERCURY LEVEL SENSOR ON THE OUTER BOOM
MV2 DRUM MICROSWITCH WINCH
P1 PRESSURE SWITCH FOR THE RE-ENTRY OF THE EXTENSION BOOMS
UCF MAIN CONTROL PANEL (FX000)
S1/2/3/… CONNECTORS
SAT1 DOUBLE CONTROL SIDE SATELLITE
SAT2 SATELLITE FOR 3° CONTROL STATION
SD1 SHUNT BOX 1
TP1 PRESSURE TRANSDUCER FOR INNER RAM
TP2 PRESSURE TRANSDUCER FOR OUTER RAM
TP3 PRESSURE TRANSDUCER FOR THE JIB RAM
View thousands of Crane Specifications on FreeCraneSpecs.com
View thousands of Crane Specifications on FreeCraneSpecs.com

Related product manuals