EasyManua.ls Logo

Felder BF 6-26 - Main Dimensions KFS-37

Felder BF 6-26
214 pages
Print Icon
To Next Page IconTo Next Page
To Next Page IconTo Next Page
To Previous Page IconTo Previous Page
To Previous Page IconTo Previous Page
Loading...
- 131 -
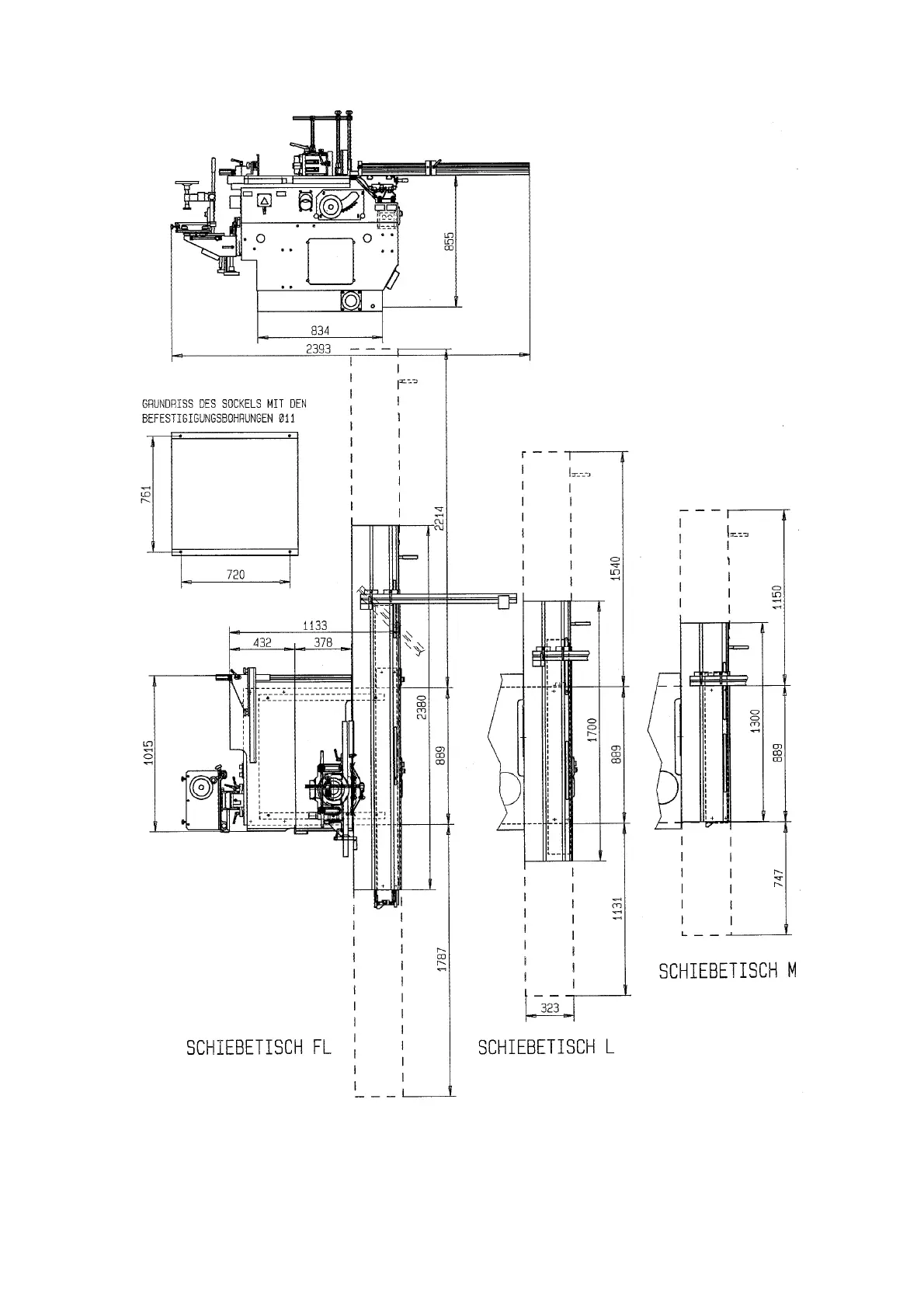
Hauptabmessungen KFS-37
Maschine mit Schiebetisch M,L ,FL
Abbildung mit Option Bohreinrich-
tung
Durchmesser der Befestigungsboh-
rungen in den Bodenschienen der
Maschine = 11 mm
Dimensions principales KFS-37
Machine avec chariot coulissant M,
L et FL. Représentation avec option
mortaiseuse.
Diamètre des percements de scelle-
ment dans le socle machine: 11 mm
Main dimensions KFS-37
Machine with sliding table M, L &FL.
Illustration with optional drilling
assembly
Diameter of the mounting holes in the
base rails of the machine = 11 mm

Table of Contents

Related product manuals