EasyManua.ls Logo

Felder BF 6-26 - Main Dimensions KFS- 6

Felder BF 6-26
214 pages
Print Icon
To Next Page IconTo Next Page
To Next Page IconTo Next Page
To Previous Page IconTo Previous Page
To Previous Page IconTo Previous Page
Loading...
- 139 -
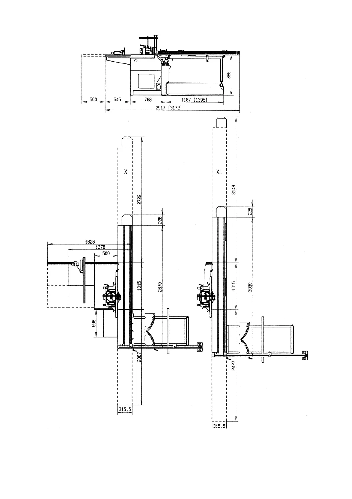
Hauptabmessungen KFS- 6
Maschine mit Schiebetisch X,XL
Abbildung ohne Option Bohreinrich-
tung
Durchmesser der Befestigungsboh-
rungen in den Bodenschienen der
Maschine = 11 mm
Dimensions principales KFS- 6
Machine avec chariot coulissant X,
XL. Représentation sans option
mortaiseuse.
Diamètre des percements de scelle-
ment dans le socle machine: 11 mm
Main dimensions KFS- 6
Machine with sliding table X, XL.
Illustration without optional drilling
assembly
Diameter of the mounting holes in the
base rails of the machine = 11 mm

Table of Contents

Related product manuals