EasyManua.ls Logo

Fermax 9449 - Page 41

Fermax 9449
Print Icon
To Next Page IconTo Next Page
To Next Page IconTo Next Page
To Previous Page IconTo Previous Page
To Previous Page IconTo Previous Page
Loading...
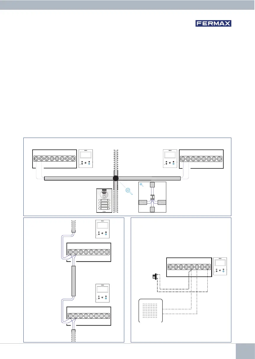
DUOX PLUS WIFI VEO XS MONITOR 7
Monitor Connectors:
Bin,Bin: Data, audio and video input.
Bout,Bout: Data, audio and video output (for cascade connection).
T, -: Apartment door call button (P1).
A+, -: Option of connection with the following devices:
•Callextenderref.2040.
•Lightandbuzzercommanderref.2438.
F1: Additional function. (Negative output “-” / command transmission, see chapter
Buttons: Auxiliary function F1).
JP1: Integrated line adapter bridge
•Right:AdaptationtypeA.
•Centre:AdaptationtypeC.
•Left:Withoutlineadaptation:OFF,(bydefault).
CASCADED
DISTRIBUTION


 


 



 


 
EXTENSIONS:
- Call extender: Ref. 2040
- Doorbell: P1


 
Ref. 2040
P1

Related product manuals