EasyManua.ls Logo

Fermax CITYLINE 4+n - Wiring Diagram

Fermax CITYLINE 4+n
Print Icon
To Next Page IconTo Next Page
To Next Page IconTo Next Page
To Previous Page IconTo Previous Page
To Previous Page IconTo Previous Page
Loading...
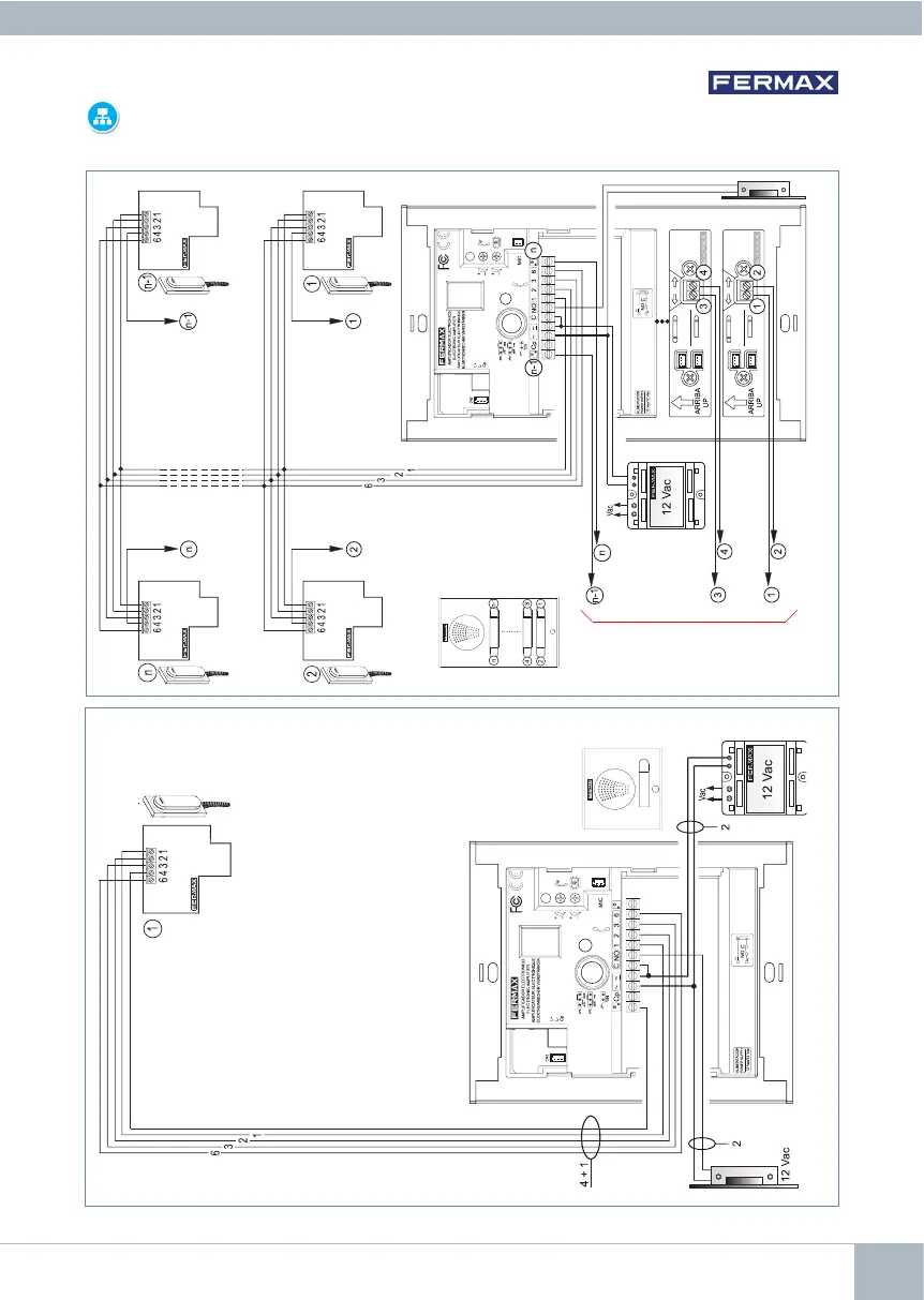
4+n CITYLINE AUDIO KIT 5
VEO
VEO
VEO
VEO
call call
call call
call
WIRING DIAGRAM KIT 2 L - 24L
WIRING DIAGRAM
VEO
WIRING DIAGRAM KIT 1 L

Other manuals for Fermax CITYLINE 4+n

Related product manuals