EasyManua.ls Logo

Fermax CITYLINE 4+n - Esquema de Cableado

Fermax CITYLINE 4+n
Print Icon
To Next Page IconTo Next Page
To Next Page IconTo Next Page
To Previous Page IconTo Previous Page
To Previous Page IconTo Previous Page
Loading...
4+n CITYLINE AUDIO KIT 3
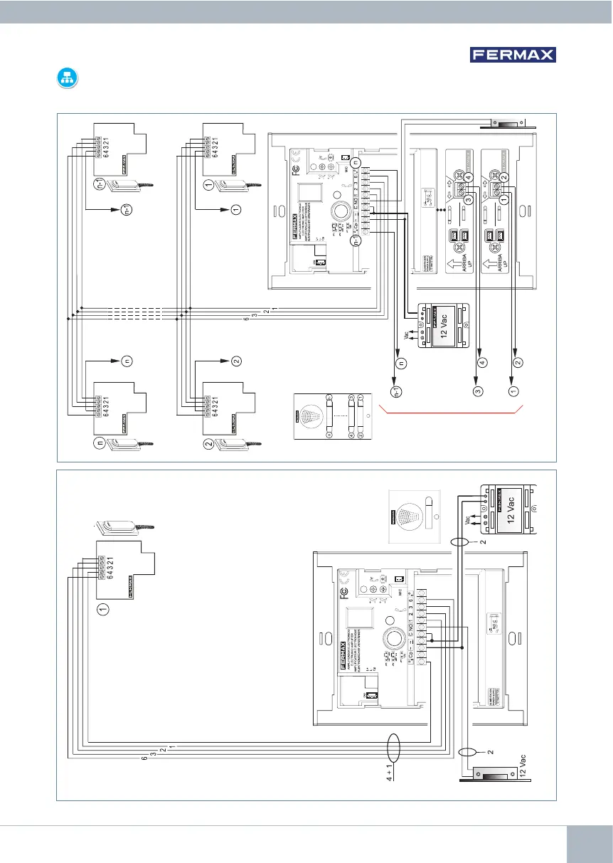
ESQUEMA DE CABLEADO
VEO
VEO
VEO
VEO
llamada llamada
llamada llamada
llamada
ESQUEMAS DE CABLEADO KIT 2 L - 24L
VEO
ESQUEMAS DE CABLEADO KIT 1 L

Other manuals for Fermax CITYLINE 4+n

Related product manuals