EasyManua.ls Logo

Fermax CITYLINE 4+n - Page 9

Fermax CITYLINE 4+n
Print Icon
To Next Page IconTo Next Page
To Next Page IconTo Next Page
To Previous Page IconTo Previous Page
To Previous Page IconTo Previous Page
Loading...
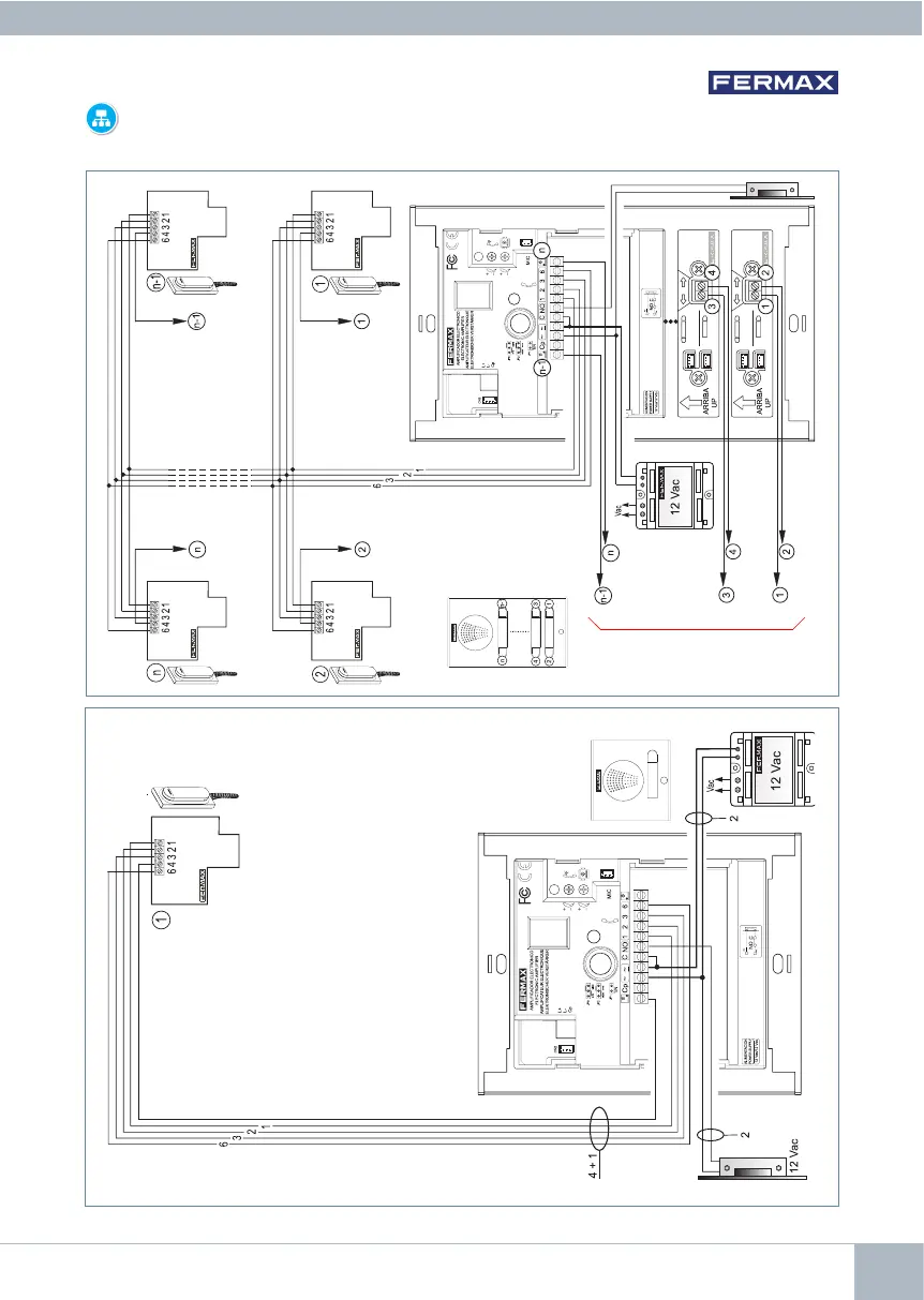
4+n CITYLINE AUDIO KIT 9
VEO
VEO
VEO
VEO
ruf ruf
ruf ruf
ruf
VERKABELUNGSSCHEMA KIT 2 L - 24L
VERKABELUNGSSCHEMA
VEO
VERKABELUNGSSCHEMA KIT 1 L

Other manuals for Fermax CITYLINE 4+n

Related product manuals