EasyManua.ls Logo

Fermax MDS DIRECT - Ads - P2

Fermax MDS DIRECT
115 pages
Print Icon
To Next Page IconTo Next Page
To Next Page IconTo Next Page
To Previous Page IconTo Previous Page
To Previous Page IconTo Previous Page
Loading...
Pag. 82
Technical Book
MDS-ADS
MDS-ADS
ADS - P2
PIN_PADSTACKPIN_PADSTACK
PIN_PADSTACKPIN_PADSTACK
V
-A
T
LE
T
L
-
+
+A
Ct
M
V
M
L
+
2 OUTPUTS VIDEO DISTRIBUTOR
DISTRIBUIDOR VIDEO 2 SALIDAS
V
5
V
1
M
+18
75
M
R1
34
+
V
2
REF.2448
6
VM M
V
LE
T
T
-A
+
L
-
Ct
+A
M
V
M
106CI08D
106CI08D
DISTRIBUIDOR VIDEO 2 SALIDAS
2 OUTPUTS VIDEO DISTRIBUTOR
T
LE
T
-A
+
-
L
+A
Ct
106CI08D
V
V
M
M
75
REF.2448
V
1
R1
+18
VM
5
M
4
+
3
MMV
2
V
6
+A
T
T
-A
LE
-
L
+
Ct
106CI08D
V
V
M
M
-
-
L
+
COAX
ADS-P2
(-)
(-)
1
2
HIGH RESOLUTION
FLAT MONITOR
HIGH PERFORMANCE
MULTIPLEXED DIGITAL SYSTEM
STOP
123
456
789
A0
HIGH RESOLUTION
CCD CAMERA
PAN &TILT
1
2
HIGH RESOLUTION
FLAT MONITOR
1
2
HIGH RESOLUTION
FLAT MONITOR
1
2
HIGH RESOLUTION
FLAT MONITOR
2
2
1
1
ADS-P2
1
2
HIGH RESOLUTION
FLAT MONITOR
REF. 2448
1
2
HIGH RESOLUTION
FLAT MONITOR
1
2
HIGH RESOLUTION
FLAT MONITOR
REF. 2448
1
2
HIGH RESOLUTION
FLAT MONITOR
+
L
10 Kohm
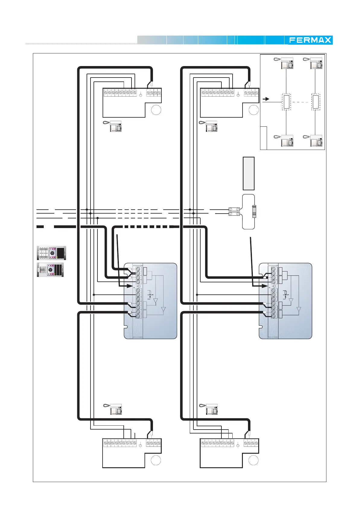
* NOTE: It is neccessary to put a 10 Kohm
resistor between terminals + and L at the end
of this branch. The panel is supplied with a plastic
bag including 5 resistors.
TO THE ADS PANEL/PANELS
OR DISTRIBUTOR DIAGRAM
FIRST FLOOR
LAST FLOOR
(*) SEE NOTE
CUT
RESISTOR
DON'T CUT
RESISTOR
NOTE: A DEFECTIVE CONNECTION OF THE SHIELD MAY
CAUSE THE SYSTEM DO NOT WORK PROPERLY.

Table of Contents

Related product manuals