EasyManua.ls Logo

Ferris 5900201 - Page 91

Ferris 5900201
98 pages
Print Icon
To Next Page IconTo Next Page
To Next Page IconTo Next Page
To Previous Page IconTo Previous Page
To Previous Page IconTo Previous Page
Loading...
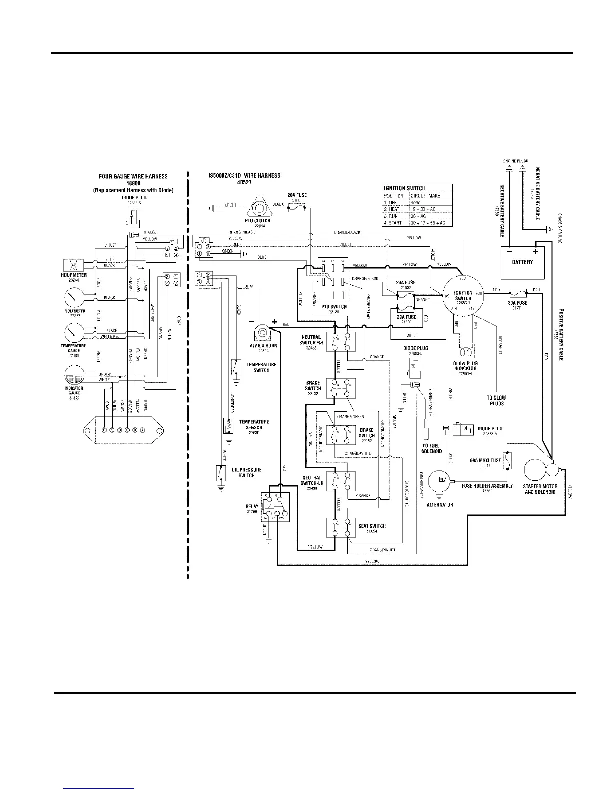
Electrical Schematic - Cranking Circuit
(S/N: 1291 & above)
168escr1
The above parts group applies to the following Mfg. Nos.:
2007
91
© Copyright Briggs and Stratton. All Rights Reserved.
5901070
(
S/N: 1226 & above
)
(
IS5000Z/C3
5901074
(
S/N: 1226 & above
)
(
IS5000Z/C3
5901071
(
S/N: 1226 & above
)
(
IS5000Z/C3
TP 400-7168-11-5Z-F

Related product manuals