EasyManua.ls Logo

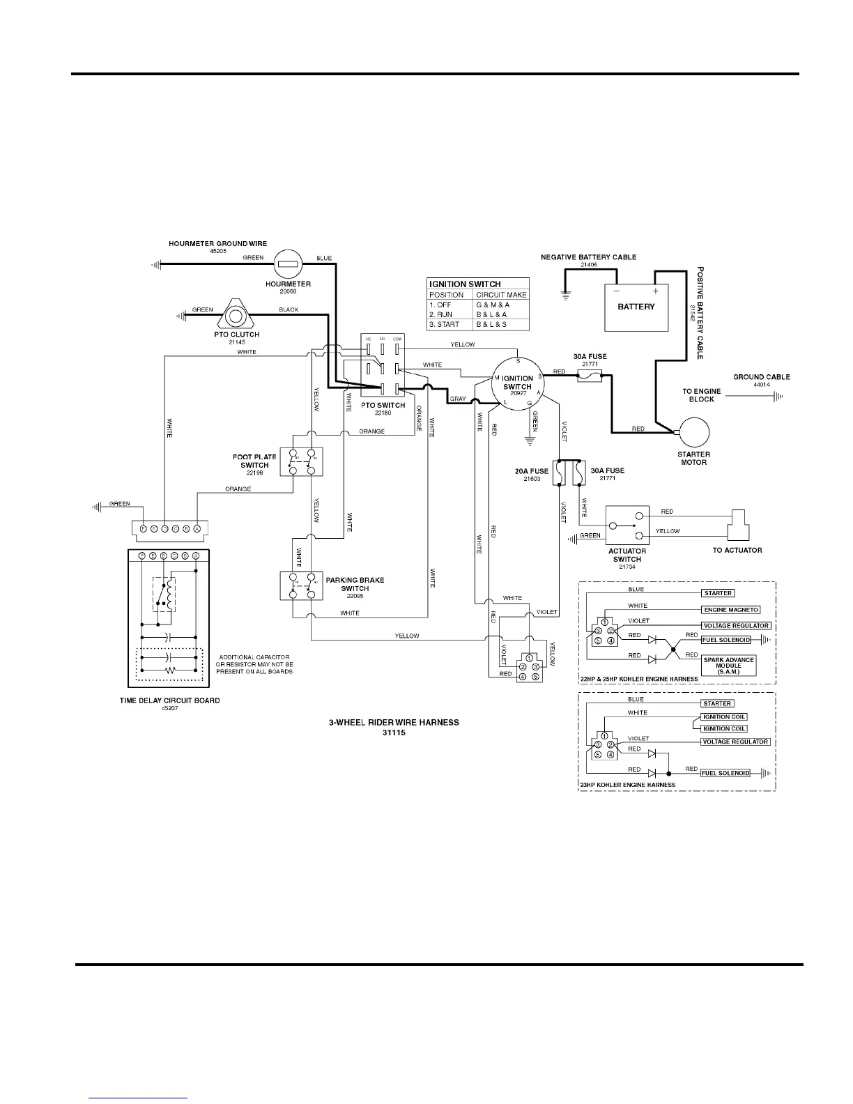
Ferris 5900228 - Kohler Electrical Schematic - PTO Clutch (S;N: 11581 & below)

Ferris 5900228
66 pages
Print Icon
To Next Page IconTo Next Page
To Next Page IconTo Next Page
To Previous Page IconTo Previous Page
To Previous Page IconTo Previous Page
Loading...
Electrical Schematic - PTO Clutch Circuit - Kohler
(S/N: 11581 & below)
094eskp0
The above parts group applies to the following Mfg. Nos.:
2005
59
© Copyright Ferris Industries. All Rights Reserved.
5901035
S/N: 1023 & Above
H3225K
5901036
(
H3227K
)
TP 400-7095-04-H3-F

Related product manuals