EasyManua.ls Logo

Ferris 5900228 - Kohler Electrical Schematic - Cranking (S;N: 11582 & above)

Ferris 5900228
66 pages
Print Icon
To Next Page IconTo Next Page
To Next Page IconTo Next Page
To Previous Page IconTo Previous Page
To Previous Page IconTo Previous Page
Loading...
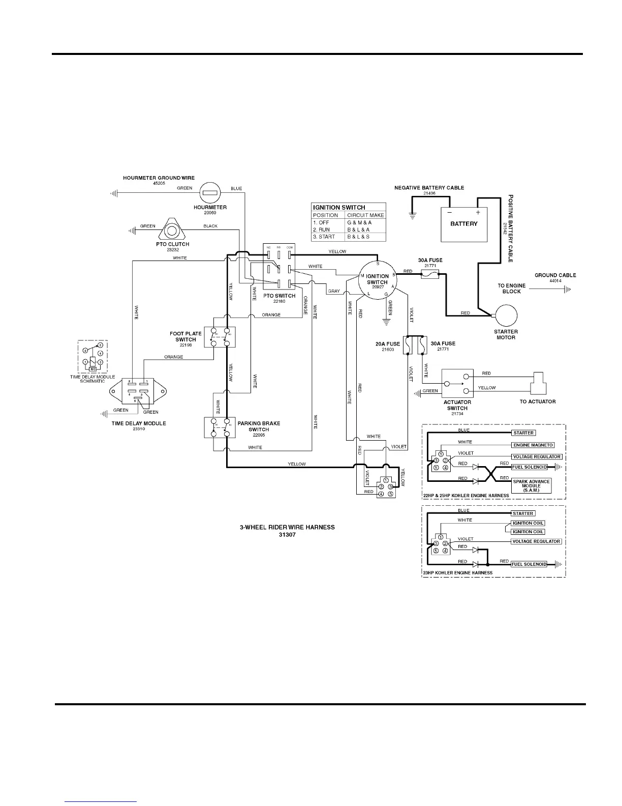
Electrical Schematic - Cranking Circuit - Kohler
(S/N: 11582 & above)
094eskr1
The above parts group applies to the following Mfg. Nos.:
2005
61
© Copyright Ferris Industries. All Rights Reserved.
5901035
S/N: 1023 & Above
H3225K
5901036
(
H3227K
)
TP 400-7095-04-H3-F

Related product manuals