EasyManua.ls Logo

Ferris 5900716 - Page 101

Ferris 5900716
104 pages
Print Icon
To Next Page IconTo Next Page
To Next Page IconTo Next Page
To Previous Page IconTo Previous Page
To Previous Page IconTo Previous Page
Loading...
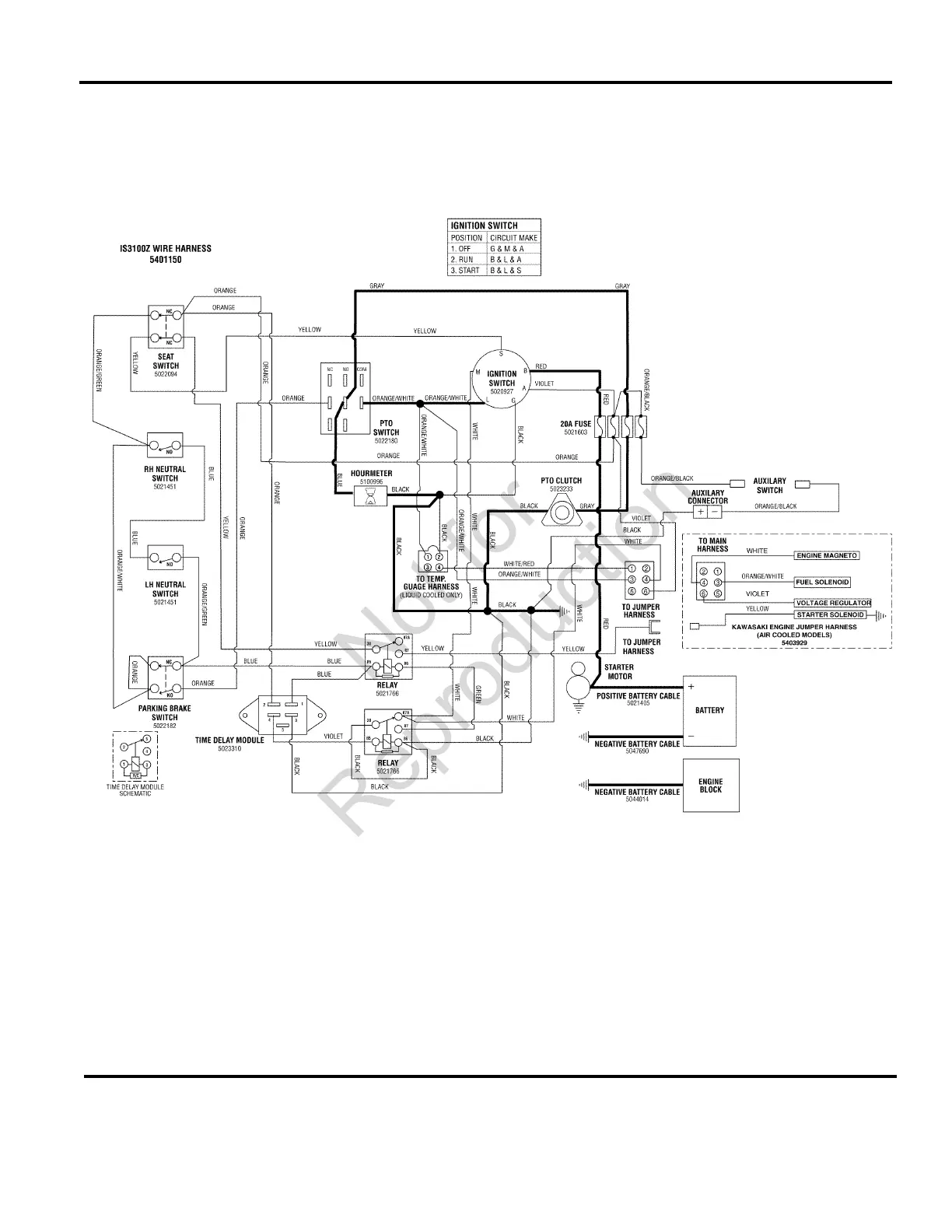
Electrical Schematic - PTO Clutch Circuit - Kawasaki 37HP
5301292P
The above parts group applies to the following Mfg. Nos.:
2010
101
© Copyright Briggs and Stratton. All Rights Reserved.
5900752
(
IS3100ZKAV3761SS
)
5900753
(
IS3100ZKAV37SS
)
TP 400-7282-BA-3Z-F
Not for
Reproduction

Table of Contents

Related product manuals