EasyManua.ls Logo

Ferris 5900716 - Page 87

Ferris 5900716
104 pages
Print Icon
To Next Page IconTo Next Page
To Next Page IconTo Next Page
To Previous Page IconTo Previous Page
To Previous Page IconTo Previous Page
Loading...
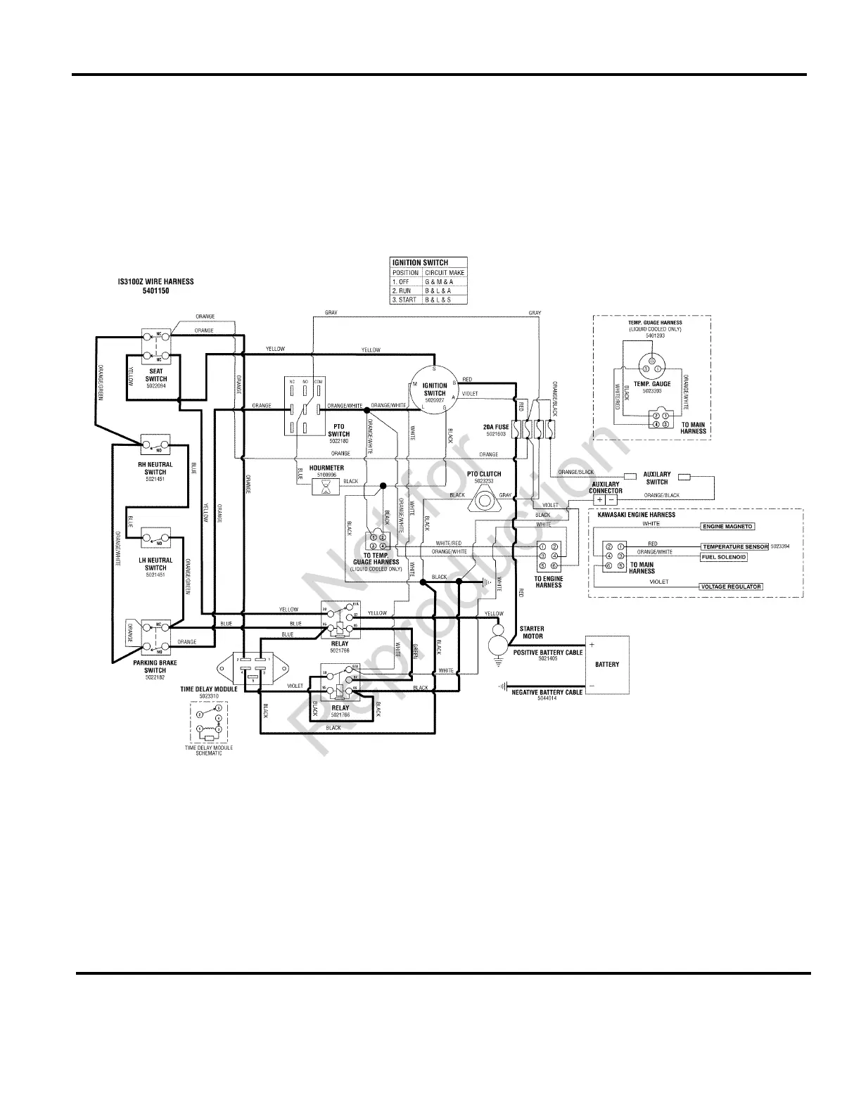
Electrical Schematic - Cranking Circuit - Kawasaki 26HP LC
282eswr0
The above parts group applies to the following Mfg. Nos.:
2010
87
© Copyright Briggs and Stratton. All Rights Reserved.
5900611
(
IS3100ZLKAV2661
)
TP 400-7282-BA-3Z-F
Not for
Reproduction

Table of Contents

Related product manuals