EasyManua.ls Logo

Ferris 5900716 - Page 91

Ferris 5900716
104 pages
Print Icon
To Next Page IconTo Next Page
To Next Page IconTo Next Page
To Previous Page IconTo Previous Page
To Previous Page IconTo Previous Page
Loading...
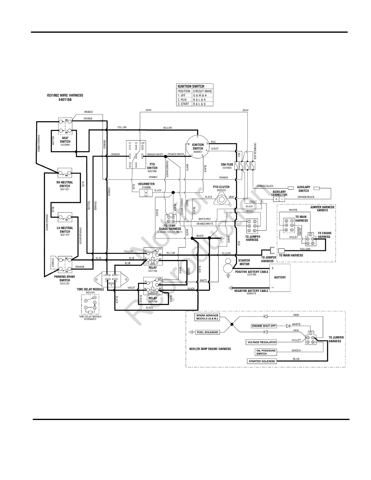
Electrical Schematic - Cranking Circuit - Kohler 30HP
282eskr0
The above parts group applies to the following Mfg. Nos.:
2010
91
© Copyright Briggs and Stratton. All Rights Reserved.
5900612
(
IS3100ZK3061
)
TP 400-7282-BA-3Z-F
Not for
Reproduction

Table of Contents

Related product manuals