EasyManua.ls Logo

Ferris 5900716 - Page 93

Ferris 5900716
104 pages
Print Icon
To Next Page IconTo Next Page
To Next Page IconTo Next Page
To Previous Page IconTo Previous Page
To Previous Page IconTo Previous Page
Loading...
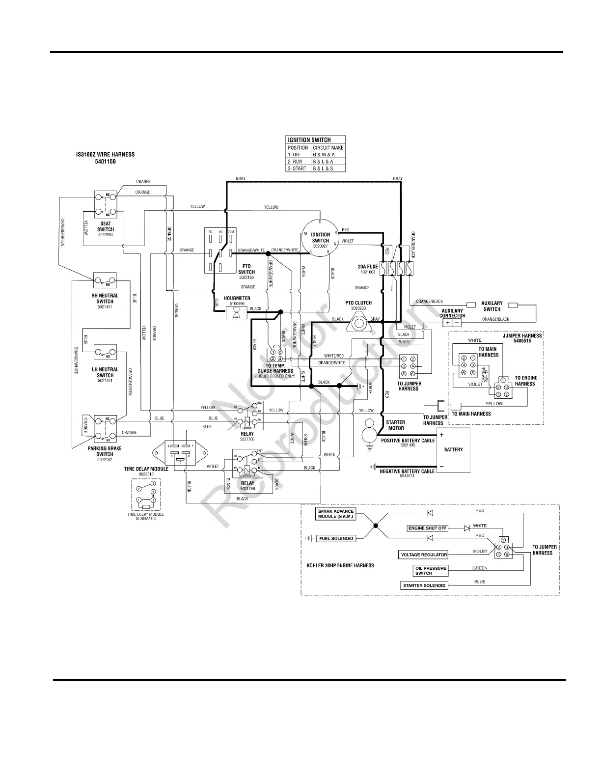
Electrical Schematic - PTO Clutch Circuit - Kohler 30HP
282eskp0
The above parts group applies to the following Mfg. Nos.:
2010
93
© Copyright Briggs and Stratton. All Rights Reserved.
5900612
(
IS3100ZK3061
)
TP 400-7282-BA-3Z-F
Not for
Reproduction

Table of Contents

Related product manuals