EasyManua.ls Logo

Ferroli DIVA C32 - Page 10

Ferroli DIVA C32
68 pages
Print Icon
To Next Page IconTo Next Page
To Next Page IconTo Next Page
To Previous Page IconTo Previous Page
To Previous Page IconTo Previous Page
Loading...
DIVA C24 / C28 / C32
10
UA
cod. 3541E032 - Rev. 00 - 02/2014
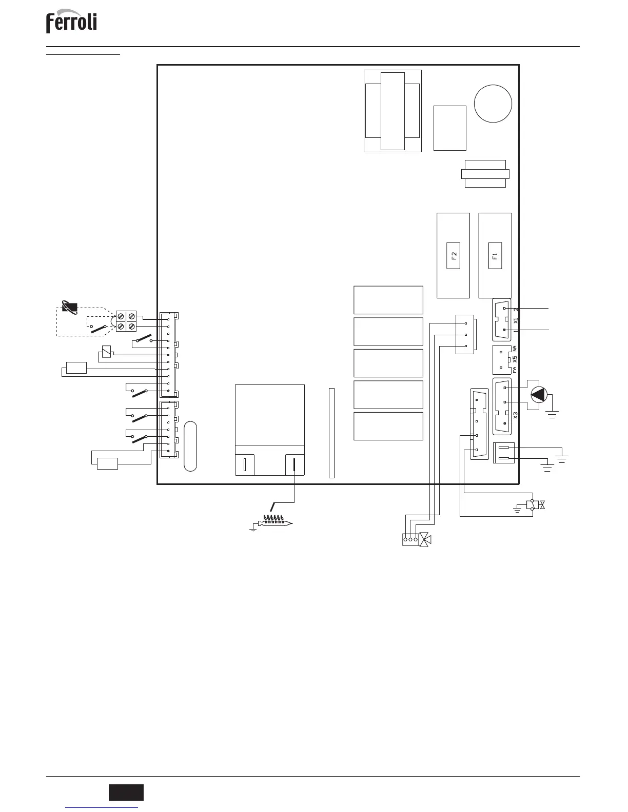
5.6 ȿɥɟɤɬɪɢɱɧɚ ɫɯɟɦɚ
ɦɚɥ. 21 - ȿɥɟɤɬɪɢɱɧɚ ɫɯɟɦɚ
A
ɍɜɚɝɚ: ɉɟɪɲ ɧɿɠ ɩɿɞ'ɽɞɧɚɬɢ ɤɿɦɧɚɬɧɢɣ ɬɟɪɦɨɫɬɚɬ ɚɛɨ ɞɢɫɬɚɧɰiɣɧɢɣ
ɯɪɨɧɨɫɬɚɬ, ɧɟɨɛɯɿɞɧɨ ɜɢɞɚɥɢɬɢ ɩɟɪɟɦɢɱɤɭ ɧɚ ɤɥɟɦɧɿɣ ɤɨɪɨɛɰɿ.
32 ɐɢɪɤɭɥɹɰɿɣɧɢɣ ɧɚɫɨɫ ɤɨɧɬɭɪɭ ɨɩɚɥɟɧɧɹ
34 Ⱦɚɬɱɢɤ ɬɟɦɩɟɪɚɬɭɪɢ ɨɩɚɥɟɧɧɹ
38 ȼɢɬɪɚɬɨɦiɪ
42 Ⱦɚɬɱɢɤ ɬɟɦɩɟɪɚɬɭɪɢ ɜ ɫɢɫɬɟɦɿ Ƚȼɉ
44 Ƚɚɡɨɜɢɣ ɤɥɚɩɚɧ
47 Ɇɨɞɭɥɸɜɚɥɶɧɚ ɤɨɬɭɲɤɚ Modureg
49 Ɂɚɩɨɛɿɠɧɢɣ ɬɟɪɦɨɫɬɚɬ
72 Ʉɿɦɧɚɬɧɢɣ ɬɟɪɦɨɫɬɚɬ (ɩɨɫɬɚɱɚɽɬɶɫɹ ɨɤɪɟɦɨ)
81 ȿɥɟɤɬɪɨɞ ɪɨɡɩɚɥɸɜɚɧɧɹ/ ɫɩɨɫɬɟɪɟɠɟɧɧɹ ɡɚ ɩɨɥɭɦ'ɹɦ
95 ȼɿɞɜɿɞɧɢɣ ɤɥɚɩɚɧ
114 Ɋɟɥɟ
ɬɢɫɤɭ ɜɨɞɢ
126 Ɍɟɪɦɨɫɬɚɬ ɞɢɦɨɜɢɯ ɝɚɡɿɜ
139 Ⱦɢɫɬɚɧɰɿɣɧɢɣ ɯɪɨɧɨɫɬɚɬ (ɮɚɤɭɥɶɬɚɬɢɜɧɨ)
X4
1
2
3
4
5
6
7
114
42
47
38
72
T.
L
N
230V
50 Hz
1
3
2
32
X7
1
44
81
1
2
3
4
5
6
7
8
9
10
11
X2
DBM32
PT1
PT2
49
126
34
T.
PR08205
3.15A 250Vac
2
3
4
139
1 2 3
95

Related product manuals