EasyManua.ls Logo

Ferroli DIVA C32 - Page 25

Ferroli DIVA C32
68 pages
Print Icon
To Next Page IconTo Next Page
To Next Page IconTo Next Page
To Previous Page IconTo Previous Page
To Previous Page IconTo Previous Page
Loading...
DIVA C24 / C28 / C32
25
FR
cod. 3541E032 - Rev. 00 - 02/2014
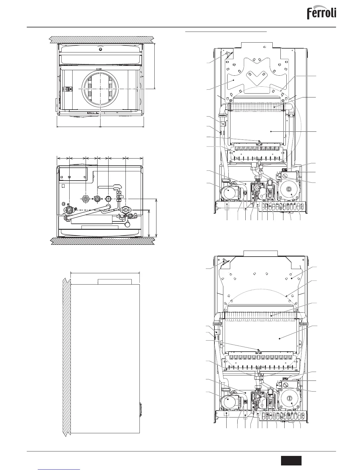
Vue du haut Modèle DIVA C28 et DIVA C32 (fig. 14)
fig. 14 - Vue du haut
Vue du bas (fig. 15)
fig. 15 - Vue du bas
Vue latérale (fig. 16)
fig. 16 - Vue latérale
5.2 Vue générale et composants principaux
Vue générale modèle DIVA C24 (fig. 17)
fig. 17 - Vue générale
Vue générale modèle DIVA C28 et DIVA C32 (fig. 18)
fig. 18 - Vue générale
200 200
208
330
44 32
114
36
14
19
27
81
95
49
42 38
37
10 8 7 9 11
194
39 74
22
126
78
56
34
44 32
114
36
14
27
78
56
126
81
95
49
42 38
37
10 8 7 9 11
194
39 74
22
34
19

Related product manuals