EasyManua.ls Logo

Ferroli DIVA C32 - Page 28

Ferroli DIVA C32
68 pages
Print Icon
To Next Page IconTo Next Page
To Next Page IconTo Next Page
To Previous Page IconTo Previous Page
To Previous Page IconTo Previous Page
Loading...
DIVA C24 / C28 / C32
28
FR
cod. 3541E032 - Rev. 00 - 02/2014
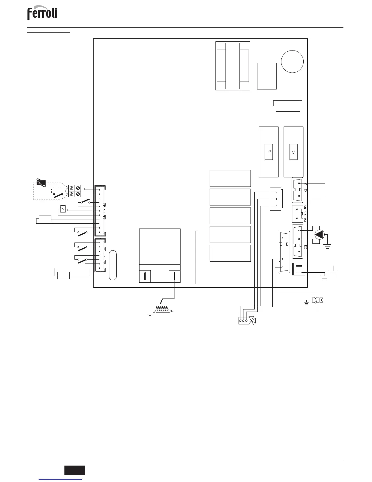
5.6 Schéma électrique
fig. 21 - Schéma électrique
A
Attention: Avant de brancher le thermostat d'ambiance ou la chronocom-
mande à distance, détacher le pontage sur le bornier.
32 Circulateur circuit chauffage
34 Capteur de température chauffage
38 Débitmètre
42 Capteur de température eau chaude sanitaire
44 Vanne à gaz
47 Modureg
49 Thermostat de sécurité
72 Thermostat d'ambiance (option)
81 Électrode d'allumage et de détection
95 By-pass
114 Pressostat eau
126 Thermostat fumées
139 Chronocommande à distance (option)
X4
1
2
3
4
5
6
7
114
42
47
38
72
T.
L
N
230V
50 Hz
1
3
2
32
X7
1
44
81
1
2
3
4
5
6
7
8
9
10
11
X2
DBM32
PT1
PT2
49
126
34
T.
PR08205
3.15A 250Vac
2
3
4
139
1 2 3
95

Related product manuals