EasyManua.ls Logo

Ferroli DIVA C32 - Page 37

Ferroli DIVA C32
68 pages
Print Icon
To Next Page IconTo Next Page
To Next Page IconTo Next Page
To Previous Page IconTo Previous Page
To Previous Page IconTo Previous Page
Loading...
DIVA C24 / C28 / C32
37
PL
cod. 3541E032 - Rev. 00 - 02/2014
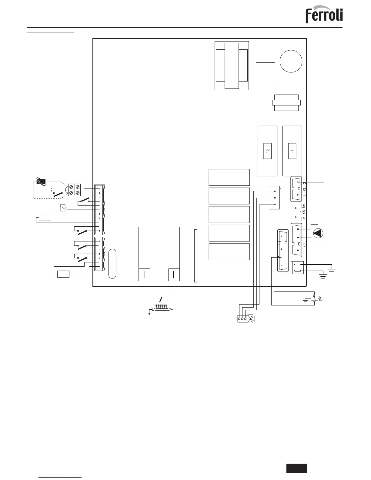
5.6 Schemat elektryczny
wygląd 21 - Schemat elektryczny
A
Uwaga: Przed podáączeniem termostatu pokojowego lub zdalnego ste-
rowania czasowego zdjąü mostek w skrzynce zaciskowej.
32 Pompa obiegowa ogrzewania
34 Czujnik temperatury ogrzewania
38 Regulator przepáywu
42 Czujnik temperatury wody uĪytkowej
44 Zawór gazu
47 Modureg
49 Termostat bezpieczeĔstwa
72 Termostat pokojowy (opcja)
81 Elektroda zapáonowa i wykrywająca páomieĔ
95 Zawór rozdzielczy
114 Regulator ciĞnienia wody
126 Termostat spalin
139 Zdalne sterowanie czasowe (opcja)
X4
1
2
3
4
5
6
7
114
42
47
38
72
T.
L
N
230V
50 Hz
1
3
2
32
X7
1
44
81
1
2
3
4
5
6
7
8
9
10
11
X2
DBM32
PT1
PT2
49
126
34
T.
PR08205
3.15A 250Vac
2
3
4
139
1 2 3
95

Related product manuals