EasyManua.ls Logo

Ferroli DIVA C32 - Page 43

Ferroli DIVA C32
68 pages
Print Icon
To Next Page IconTo Next Page
To Next Page IconTo Next Page
To Previous Page IconTo Previous Page
To Previous Page IconTo Previous Page
Loading...
DIVA C24 / C28 / C32
43
RO
cod. 3541E032 - Rev. 00 - 02/2014
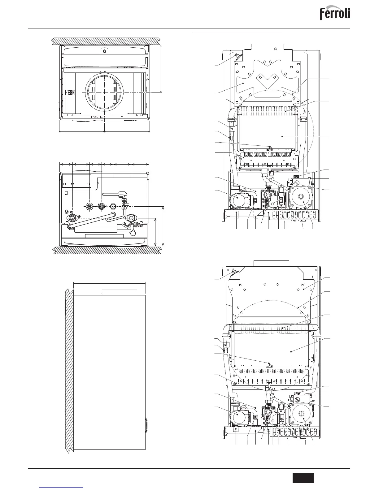
Vedere de sus, Modelele DIVA C28 úi DIVA C32 (fig. 14)
fig. 14 - Vedere de sus
Vedere de jos (fig. 15)
fig. 15 - Vedere de jos
Vedere laterală (fig. 16)
fig. 16 - Vedere laterală
5.2 Vedere generală úi componente principale
Vedere generală, modelul DIVA C24 (fig. 17)
fig. 17 - Vedere generală
Vedere generală, modelele DIVA C28 úi DIVA C32 (fig. 18)
fig. 18 - Vedere generală
200 200
208
330
44 32
114
36
14
19
27
81
95
49
42 38
37
10 8 7 9 11
194
39 74
22
126
78
56
34
44 32
114
36
14
27
78
56
126
81
95
49
42 38
37
10 8 7 9 11
194
39 74
22
34
19

Related product manuals