EasyManua.ls Logo

Ferroli divaproject C24 - Page 58

Ferroli divaproject C24
Print Icon
To Next Page IconTo Next Page
To Next Page IconTo Next Page
To Previous Page IconTo Previous Page
To Previous Page IconTo Previous Page
Loading...
DIVAPROJECT C24

RO
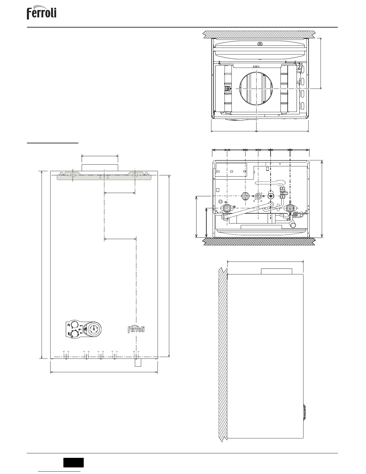
5. CARACTERISTICI úI DATE TEHNICE
Tabel. 4 - Legenda figurilor din cap. 5
5.1 Dimensiuni úi racorduri
fig. 8 - Vedere frontală
fig. 9 - Vedere de sus
fig. 10 - Vedere de jos
fig. 11 - Vedere laterală
7
Intrare gaz
39
Limitator de debit apă
8
Ieúire apă caldă menajeră
42
Senzor de temperatură apă menajeră
9
Intrare apă menajeră
44
Valvă de gaz
10
Tur instalaĠie
49
Termostat de siguranĠă
11
Retur instalaĠie
56
Vas de expansiune
14
Supapă de siguranĠă
74
Robinet de umplere instalaĠie
19
Cameră de ardere
78
Dispozitiv antirefulare
22
Arzător
81
Electrod de aprindere úi detectare
27
Schimbător de căldură din cupru pentru încălzire úi apă
caldă menajeră
95
Valvă deviatoare
32
Pompă de circulaĠie încălzire
114
Presostat apă
34
Senzor temperatură încălzire
126
Termostat gaze arse
36
Evacuare automată aer
194
Schimbător de căldură apă menajeră
37
Filtru intrare apă rece
241
Bypass automat
38
Fluxostat
700
680
400
117
120
Ø
131
184
216
208
330
178
126
60 76 54 50 80 80
10
897
11
330
FRG*5HY

Related product manuals