EasyManua.ls Logo

Ferroli F24E - Page 21

Ferroli F24E
52 pages
Print Icon
To Next Page IconTo Next Page
To Next Page IconTo Next Page
To Previous Page IconTo Previous Page
To Previous Page IconTo Previous Page
Loading...
Ferroli F24
21
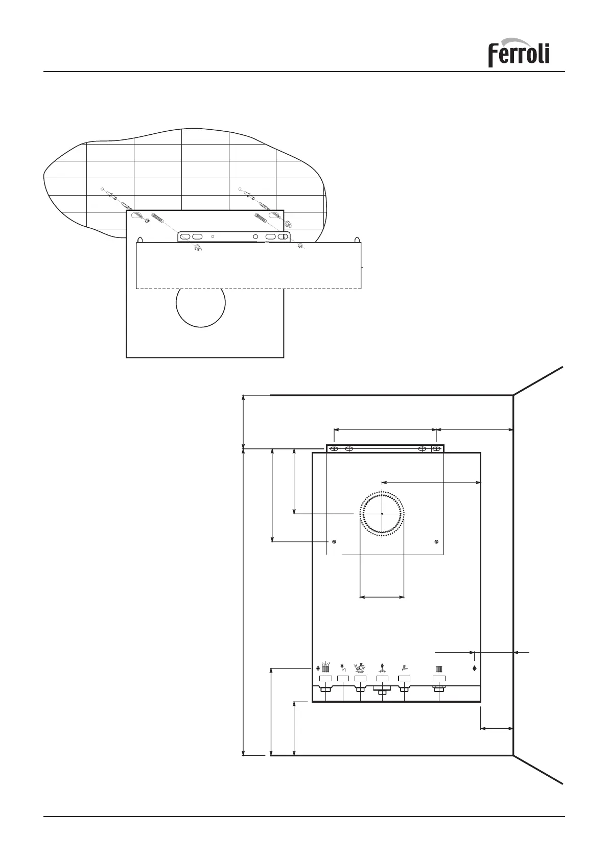
Drilling Template (Rear Flue Application)
Select suitable mounting position for
boiler, using the template mark flue
outlet and boiler mounting points. Drill
two 10mm holes 90mm deep to accept the
wall plugs, fit wall plugs. Fit two special
wall plugs on the wall as described in the
fig. 26a. Fasten the wall bracket to the
wall using an antitheft nut on the right side
and a standard nut (M8) on the left side.
Mount the boiler on the wall bracket and fix
using an antitheft nut on the left side and
a standard nut (M8) on the right side.
Using a core drill cut a 118mm diameter
hole for the flue.
1. CH flow
2. Safety Valve
3. Domestic hot water outlet
4. Gas supply
5. Domestic hot water inlet
6. CH return
932 min
178200 min
5 min
125 min280
254.5
295.5 min
21 min
Ø118
183 min
270
Ø 3/4" Ø 1/2" Ø 1/2" Ø 1/2" Ø 1/2" Ø 3/4"
123 4 5 6
Fig. 26b
Fig. 26a

Related product manuals