EasyManua.ls Logo

Fiat 2016 500X - Page 391

Fiat 2016 500X
588 pages
Print Icon
To Next Page IconTo Next Page
To Next Page IconTo Next Page
To Previous Page IconTo Previous Page
To Previous Page IconTo Previous Page
Loading...
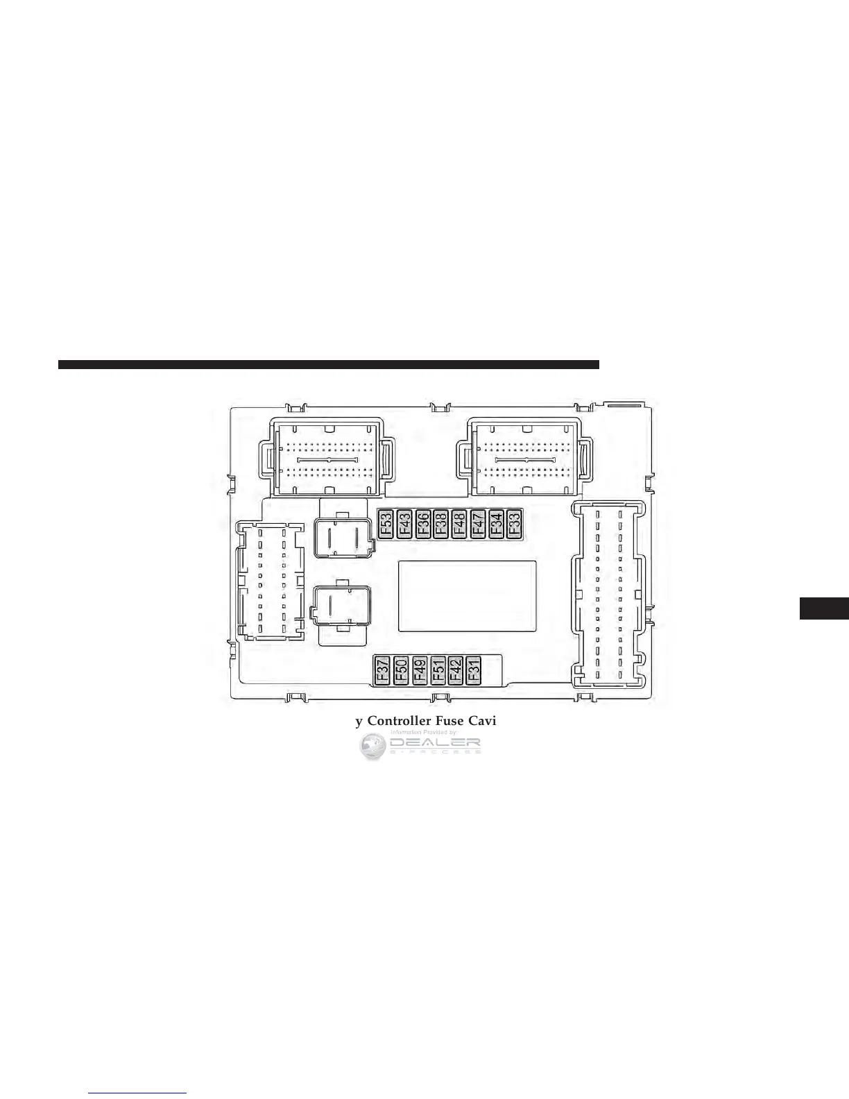
For the fuse replacement see your authorized dealer.
Body Controller Fuse Cavities
8
IN CASE OF EMERGENCY 389
Information Provided by:

Table of Contents