EasyManua.ls Logo

Fimar TR22/RS - Page 80

Fimar TR22/RS
Print Icon
To Next Page IconTo Next Page
To Next Page IconTo Next Page
To Previous Page IconTo Previous Page
To Previous Page IconTo Previous Page
Loading...
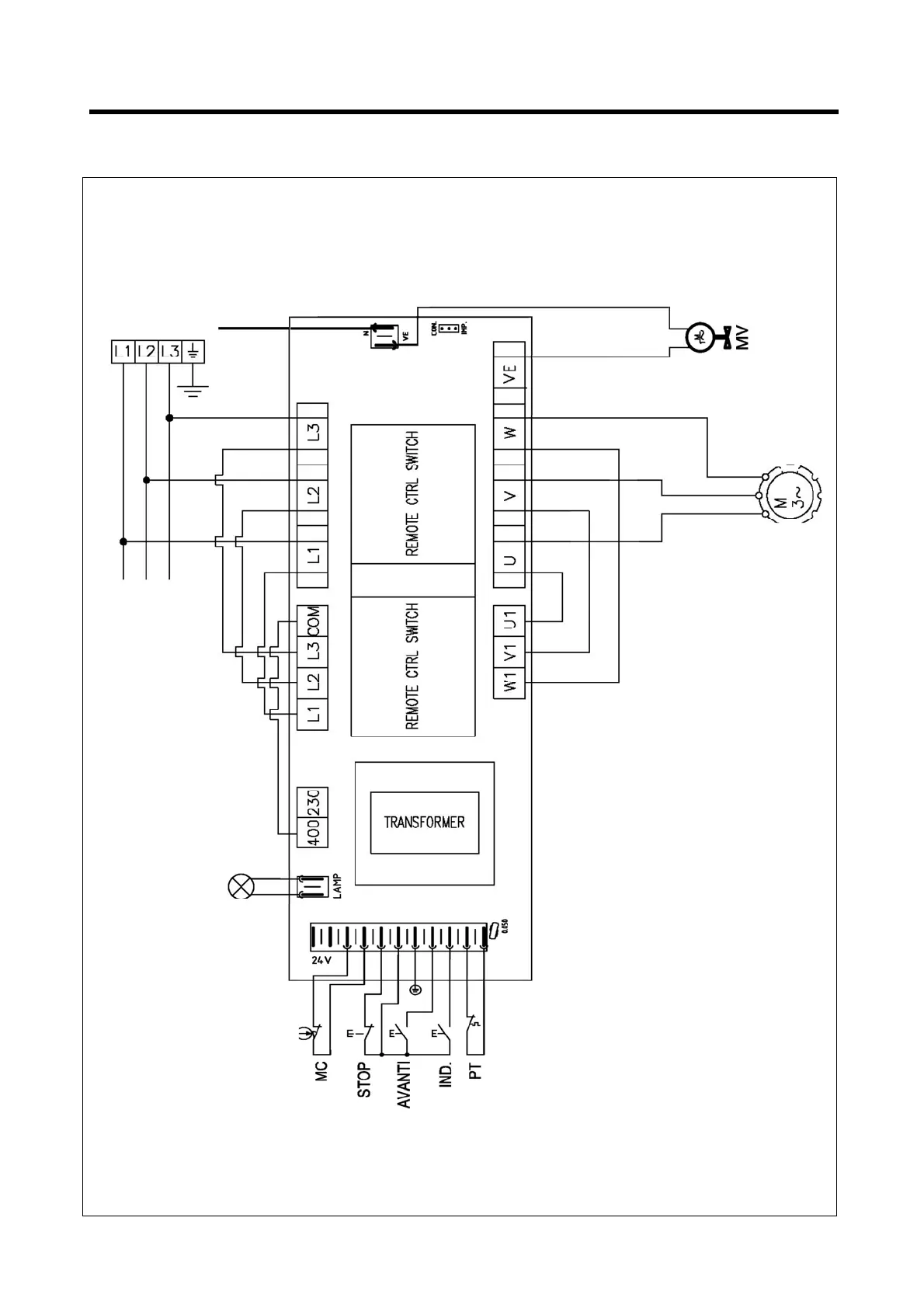
SCHEMA ELETTRICO • ELECTRICAL WIRING DIAGRAM • SCHÉMA ÉLECTRIQUE • SCHALTPLAN •
ESQUEMA ELECTRICO • ESQUEMA ELÉCTRICO • ЭЛЕКТРИЧЕСКАЯ СХЕМА
AB22AT TR22/TS-RS-RG TR32/TN-RS
(3 Phase)

Table of Contents

Related product manuals