EasyManua.ls Logo

Fischer Panda 9000 - Technical Data; Technical Data of the CB-G

Fischer Panda 9000
250 pages
Print Icon
To Next Page IconTo Next Page
To Next Page IconTo Next Page
To Previous Page IconTo Previous Page
To Previous Page IconTo Previous Page
Loading...
Panda xControl
Seite/Page 244 - Kaptitel/Chapter 11: Panda xControl 18.12.15
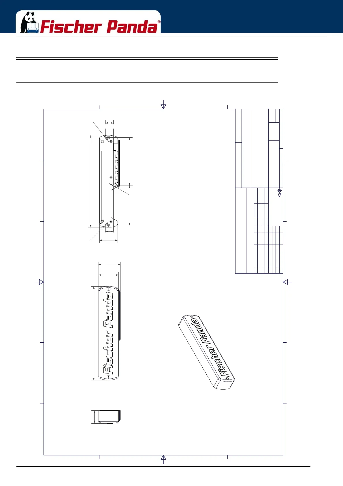
11.7 Technical Data
11.7.1 Technical Data of the CB-G
Fig. 11.7.1-1: CB-G
1
1
2
2
3
3
4
4
5
5
6
6
A A
B B
C C
D D
Zust.
Änderungen
Datum
Name
Datum Name
Bearbeiter
letzte Freigabe
erste Freigabe:
Maßstab:
Material:
Art.-Nr.:
Gewicht:
Ersatz für Ersetzt durch
Blatt
13.02.2015
jschaefers
1 / 1
A3
Fischer Panda GmbH Otto-Hahn-Str. 40 D-33104 Paderborn Tel.: 05254/9202-0
Fax (05254) 9202-550 info@fischerpanda.de www.fischerpanda.de
Allgemeintoleranzen nach
DIN ISO 2768-mK
Schutzvermerk nach
DIN 34 beachten !
Zeichnungs Nr.
FP1-038543
Übergabebox kplt Befestigungspunkte
3D-Nr: FP1-036154
Vers.:
Version
PrL:-
Fischer Panda
_
1 : 2
29,6
216,9
4
6
,
1
5
0
,
1
1
8
,
1
91,1 110,9
1
8
,
1
4
2
,
1
212,9
Ansicht ohne Abdeckung
P
3
,
5
P
3
,
5
P
3
,
5

Table of Contents

Related product manuals