EasyManua.ls Logo

Flotec FPSC2200A-10 - Page 19

Flotec FPSC2200A-10
36 pages
Print Icon
To Next Page IconTo Next Page
To Next Page IconTo Next Page
To Previous Page IconTo Previous Page
To Previous Page IconTo Previous Page
Loading...
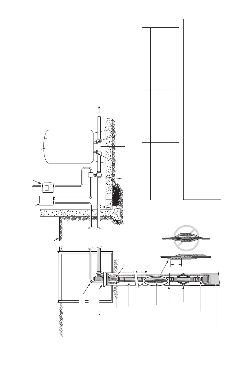
Union
Control box (3 wire models only)
Electrical Disconnect Box
Pressure Gauge
Pressure Switch
To House Service
Relief Valve
Power Cable
Nylon Tape
Safety Rope
Cable Splices
Plastic Pipe
Adapter
Plastic Pipe
Adapter
Pump
Check
Valve
Centering Guide
Splice Cables
Like This – Not Like This
4"
Pre-Charged Tank Installation
Sanitary Well Seal
Tank Tee
Ground Level
Pre-Charged Tank
Well Seal (Purchase
Separately)
Conduit or Sleeve
Insulated/Heated
Box
Démarrage en lb/po
2
Arrêt en lb/po
2
Pression de précharge
20 (138 kPa) 40 (276 kPa) 18 lb/po
2
(124 kPa)
30 (207 kPa) 50 (345 kPa) 28 lb/po
2
(193 kPa)
40 (276 kPa) 60 (414 kPa) 38 lb/po
2
(262 kPa)
REMARQUE : Une boîte de commande n’est pas utilisée avec les moteurs à
2 fils. Brancher les fils du pressostat directement sur le moteur.
Se reporter aux pages 13–17 pour
les instructions détaillées concernant le câblage.
Joint sanitaire de puits
Niveau du sol
Boîte de commande (modèles à 3 fils seulement)
Installation des réservoirs préchargés
Boîte de coupure du courant électrique
Réservoir préchargé
Vers le service de l’habitation
Manomètre
Clapet de
non retour
Raccord union
Boîte isolée
et chauffée
Conduit ou manchon
Joint du puits
(vendu séparément)
Adaptateur de
tuyau en plastique
Câble d’alimentation
Ruban en nylon
Épissures du câble
Guide de centrage
Câble de
sécurité
4 po
Adaptateur de
tuyau en plastique
Pompe
Clapet de
non retour
Épissure du câble –
Comme ceci – Pas comme ceci
Pressostat
Té du réservoir
19
FIGURE 12 – Installation typique d’une pompe submersible et d’un réservoir préchargé

Related product manuals