EasyManua.ls Logo

FPT CURSOR 13 - Checking the Timing and Oil Pump Gear Control

Default Icon
274 pages
Print Icon
To Next Page IconTo Next Page
To Next Page IconTo Next Page
To Previous Page IconTo Previous Page
To Previous Page IconTo Previous Page
Loading...
42
SECTION 6 - GENERAL MECHANICAL OVERHAUL
CURSOR SERIES
Base - 03/2015 Print P4D32C006 E
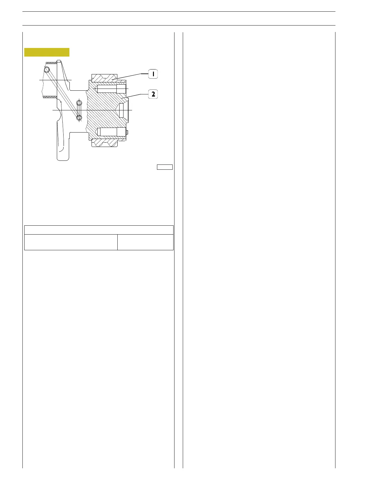
Checking the timing and oil pump gear control
Figure 89
144834
Check that the toothing of the gear is neither damaged nor
worn; if it is, take it out with an appropriate extractor and repla-
ce it.
When fitting the gear (1) on the crankshaft (2), heat it for no
longer than 2 hours in an oven at the temperature indicated
below .
Technical data
Heating temperature for gear fit-
ting
180˚C
Let it cool down after pressing
If changing the pin (3), after fitting it on, check it protrudes from
the crankshaft as shown in the figure.

Table of Contents

Related product manuals